Elected Officials
Courts
Departments
Initiatives
Open Government
About
Login / Register
Home
/
Property & Tax Records
/
Property Records
/
Property & Tax Search
/
Parcel Profile
/
Print View
Search for Another Parcel
Parcel Profile
Historical Card
Sketches
Photos
Tax Map
Taxes
Print View
Print This Page
Address: 118 WALNUT ST
Parcel: 23015052001000
Parcel Profile
Address
118 | WALNUT | ST
Street Status
PAVED | SIDEWALK
School District
GIRARD SCHOOL
Acreage
0.5107
Classification
R
Land Use Code
SINGLE FAMILY
Legal Description
118 WALNUT ST 89.22 X 278.69
Square Feet
1635
Topo
LEVEL
Utility
ALL PUBLIC
Zoning
Please contact your municipal zoning officer
Deed Book
2018
Deed Page
015454
2026 Tax Values
Land Value / Taxable
16,900 / 16,900.00
Building Value / Taxable
60,200 / 60,200.00
Total Value / Taxable
77,100 / 77,100.00
Clean & Green
Inactive
Homestead Status
Active
Farmstead Status
Inactive
Lerta Amount
0
Lerta Expiration Year
0
Residential Data
Card 1
Style
OLD STYLE
Basement
PART
Year Built
1834
Exterior Wall
ALUMINUM/VINYL
Total Living Area
1635
Full Baths
1
Half Baths
0
Fuel Type
GAS
Heating
CENTRAL
Heating System
HOT WATER
Stories
1.5
Total Bedrooms
3
Total Family Rooms
1
Total Rooms
7
Fireplaces
0
Other Buildings & Yards
Description
Built
Width
Length
Area
FRAME OR CB DETACHED GARAGE
1960
18
20
360
Sales History
Sale Date
Type
Price
Book / Page
Other Info
8/1/2018
LAND & BUILDING
57700
2018 / 015454
SPECIAL WARRANTY DEED
4/25/2006
LAND & BUILDING
0
1322 / 1028
QUIT CLAIM DEED
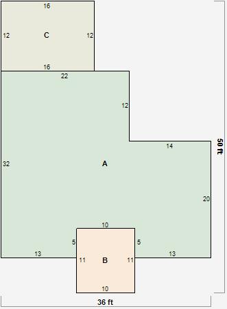
Parcel Sketches
Residential Card 1
A
MAIN
934 square feet
B
OFP OPEN FRAME PORCH
110 square feet
C
EFP ENCL FRAME PORCH
192 square feet
Parcel Images
Please note:
this tab is for informational purposes only and may not show all delinquencies, see the Taxes tab for more accurate delinquent taxes due.