Elected Officials
Courts
Departments
Initiatives
Open Government
About
Login / Register
Home
/
Property & Tax Records
/
Property Records
/
Property & Tax Search
/
Parcel Profile
/
Print View
Search for Another Parcel
Parcel Profile
Historical Card
Sketches
Photos
Tax Map
Taxes
Print View
Print This Page
Address: 156 LOCUST ST
Parcel: 23015052002200
Parcel Profile
Address
156 | LOCUST | ST
Street Status
PAVED | SIDEWALK
School District
GIRARD SCHOOL
Acreage
0.2686
Classification
R
Land Use Code
TWO FAMILY
Legal Description
156 LOCUST ST 90 X 130
Square Feet
1300
Topo
LEVEL
Utility
ALL PUBLIC
Zoning
Please contact your municipal zoning officer
Deed Book
2015
Deed Page
028500
2026 Tax Values
Land Value / Taxable
14,900 / 14,900.00
Building Value / Taxable
43,900 / 43,900.00
Total Value / Taxable
58,800 / 58,800.00
Clean & Green
Inactive
Homestead Status
Inactive
Farmstead Status
Inactive
Lerta Amount
0
Lerta Expiration Year
0
Residential Data
Card 1
Style
OLD STYLE
Basement
PART
Year Built
1860
Exterior Wall
ALUMINUM/VINYL
Total Living Area
1300
Full Baths
2
Half Baths
0
Fuel Type
GAS
Heating
NON CENTRAL
Heating System
NONE
Stories
2.0
Total Bedrooms
2
Total Family Rooms
0
Total Rooms
7
Fireplaces
0
Other Buildings & Yards
No OBY Data Found
Sales History
Sale Date
Type
Price
Book / Page
Other Info
12/31/2015
LAND & BUILDING
65000
2015 / 028500
SPECIAL WARRANTY DEED
2/14/2003
LAND & BUILDING
0
0976 / 2063
QUIT CLAIM DEED
7/7/1977
0
1270 / 0468
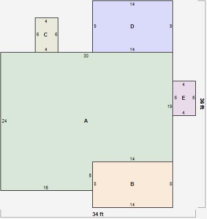
Parcel Sketches
Residential Card 1
A
MAIN
650 square feet
B
OFP OPEN FRAME PORCH
112 square feet
C
FR UT FRAME UTILITY BUILDING
24 square feet
D
EFP ENCL FRAME PORCH
126 square feet
E
WDDCK WOOD DECKS
24 square feet
Parcel Images
Please note:
this tab is for informational purposes only and may not show all delinquencies, see the Taxes tab for more accurate delinquent taxes due.