Elected Officials
Courts
Departments
Initiatives
Open Government
About
Login / Register
Home
/
Property & Tax Records
/
Property Records
/
Property & Tax Search
/
Parcel Profile
/
Print View
Search for Another Parcel
Parcel Profile
Historical Card
Sketches
Photos
Tax Map
Taxes
Print View
Print This Page
Address: 9759 GLENWOOD AVE
Parcel: 24002007002000
Parcel Profile
Address
9759 | GLENWOOD | AVE
Street Status
UNPAVED
School District
GIRARD SCHOOL
Acreage
0.5174
Classification
R
Land Use Code
SINGLE FAMILY
Legal Description
9759 GLENWOOD AVE LOT 46 193.55 X 130.6
Square Feet
1246
Topo
LEVEL
Utility
GAS | WELL | SEPTIC
Zoning
Please contact your municipal zoning officer
Deed Book
0397
Deed Page
0040
2026 Tax Values
Land Value / Taxable
33,700 / 33,700.00
Building Value / Taxable
47,200 / 47,200.00
Total Value / Taxable
80,900 / 80,900.00
Clean & Green
Inactive
Homestead Status
Active
Farmstead Status
Inactive
Lerta Amount
0
Lerta Expiration Year
0
Residential Data
Card 1
Style
RANCH
Basement
PART
Year Built
1928
Exterior Wall
ALUMINUM/VINYL
Total Living Area
1246
Full Baths
1
Half Baths
0
Fuel Type
GAS
Heating
CENTRAL
Heating System
FORCED AIR
Stories
1.0
Total Bedrooms
3
Total Family Rooms
0
Total Rooms
6
Fireplaces
0
Other Buildings & Yards
No OBY Data Found
Sales History
Sale Date
Type
Price
Book / Page
Other Info
8/7/1995
0
0397 / 0040
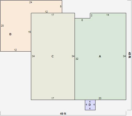
Parcel Sketches
Residential Card 1
A
MAIN
668 square feet
B
WDDCK WOOD DECKS
300 square feet
C
UNFIN BSMT BASEMENT UNFINISHED 1S FR ONE STORY FRAME
578 square feet
D
OFP OPEN FRAME PORCH
16 square feet
Parcel Images
Please note:
this tab is for informational purposes only and may not show all delinquencies, see the Taxes tab for more accurate delinquent taxes due.