Elected Officials
Courts
Departments
Initiatives
Open Government
About
Login / Register
Home
/
Property & Tax Records
/
Property Records
/
Property & Tax Search
/
Parcel Profile
/
Print View
Search for Another Parcel
Parcel Profile
Historical Card
Sketches
Photos
Tax Map
Taxes
Print View
Print This Page
Address: 127 FAIRPLAIN RD
Parcel: 24003010002200
Parcel Profile
Address
127 | FAIRPLAIN | RD
Street Status
PAVED
School District
GIRARD SCHOOL
Acreage
0.7140
Classification
R
Land Use Code
SINGLE FAMILY
Legal Description
127 FAIRPLAIN RD LOT 3 198.71 X 297.58 IRR
Square Feet
698
Topo
LEVEL
Utility
GAS | WELL | SEPTIC
Zoning
Please contact your municipal zoning officer
Deed Book
1601
Deed Page
2310
2026 Tax Values
Land Value / Taxable
36,300 / 36,300.00
Building Value / Taxable
33,400 / 33,400.00
Total Value / Taxable
69,700 / 69,700.00
Clean & Green
Inactive
Homestead Status
Inactive
Farmstead Status
Inactive
Lerta Amount
0
Lerta Expiration Year
0
Residential Data
Card 1
Style
BUNGALOW
Basement
CRAWL
Year Built
1925
Exterior Wall
FRAME
Total Living Area
698
Full Baths
1
Half Baths
0
Fuel Type
GAS
Heating
CENTRAL
Heating System
FORCED AIR
Stories
1.0
Total Bedrooms
2
Total Family Rooms
0
Total Rooms
4
Fireplaces
0
Other Buildings & Yards
Description
Built
Width
Length
Area
FRAME OR CB DETACHED GARAGE
1925
20
24
480
Sales History
Sale Date
Type
Price
Book / Page
Other Info
11/6/2009
LAND & BUILDING
70000
1601 / 2310
WARRANTY/SURVIVORSHIP DEED
8/10/1988
0
0060 / 1461
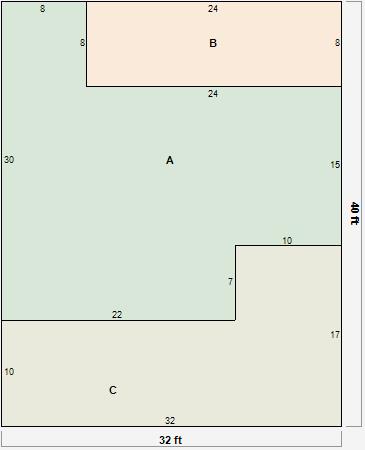
Parcel Sketches
Residential Card 1
A
MAIN
698 square feet
B
OFP OPEN FRAME PORCH
192 square feet
C
EFP ENCL FRAME PORCH
390 square feet
Parcel Images
Please note:
this tab is for informational purposes only and may not show all delinquencies, see the Taxes tab for more accurate delinquent taxes due.