Elected Officials
Courts
Departments
Initiatives
Open Government
About
Login / Register
Home
/
Property & Tax Records
/
Property Records
/
Property & Tax Search
/
Parcel Profile
/
Print View
Search for Another Parcel
Parcel Profile
Historical Card
Sketches
Photos
Tax Map
Taxes
Print View
Print This Page
Address: 9892 W LAKE RD
Parcel: 24004007001000
Parcel Profile
Address
9892 | W | LAKE | RD
Street Status
PAVED
School District
GIRARD SCHOOL
Acreage
1.9150
Classification
R
Land Use Code
SINGLE FAMILY
Legal Description
9892 WEST LAKE RD LOT 1 1.915 AC
Square Feet
2420
Topo
LEVEL
Utility
GAS | WELL | SEPTIC
Zoning
Please contact your municipal zoning officer
Deed Book
2016
Deed Page
002281
2026 Tax Values
Land Value / Taxable
32,800 / 32,800.00
Building Value / Taxable
117,980 / 117,980.00
Total Value / Taxable
150,780 / 150,780.00
Clean & Green
Inactive
Homestead Status
Inactive
Farmstead Status
Inactive
Lerta Amount
0
Lerta Expiration Year
0
Residential Data
Card 1
Style
OLD STYLE
Basement
FULL
Year Built
1900
Exterior Wall
COMPOSITION
Total Living Area
2420
Full Baths
1
Half Baths
1
Fuel Type
GAS
Heating
CENTRAL
Heating System
FORCED AIR
Stories
2.0
Total Bedrooms
5
Total Family Rooms
0
Total Rooms
12
Fireplaces
1
Other Buildings & Yards
Description
Built
Width
Length
Area
FLAT BARN
1950
30
34
1020
FRAME OR CB DETACHED GARAGE
1950
18
24
432
RESIDENTIAL FINISHED OUTBUILD
1950
16
18
288
WOOD DECK
1999
18
8
144
Sales History
Sale Date
Type
Price
Book / Page
Other Info
2/2/2016
LAND & BUILDING
0
2016 / 002281
WARRANTY/SURVIVORSHIP DEED
6/16/2004
LAND & BUILDING
164800
1145 / 2181
WARRANTY/SURVIVORSHIP DEED
1/27/1999
LAND & BUILDING
112000
614 / 1022
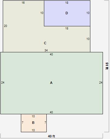
Parcel Sketches
Residential Card 1
A
MAIN
960 square feet
B
OFP OPEN FRAME PORCH
70 square feet
C
UNFIN BSMT BASEMENT UNFINISHED 1S FR ONE STORY FRAME
500 square feet
D
EFP ENCL FRAME PORCH
180 square feet
Parcel Images
Please note:
this tab is for informational purposes only and may not show all delinquencies, see the Taxes tab for more accurate delinquent taxes due.