Elected Officials
Courts
Departments
Initiatives
Open Government
About
Login / Register
Home
/
Property & Tax Records
/
Property Records
/
Property & Tax Search
/
Parcel Profile
/
Print View
Search for Another Parcel
Parcel Profile
Historical Card
Sketches
Photos
Tax Map
Taxes
Print View
Print This Page
Address: 2114 NURSERY RD
Parcel: 24004019000300
Parcel Profile
Address
2114 | NURSERY | RD
Street Status
PAVED
School District
GIRARD SCHOOL
Acreage
9.0000
Classification
R
Land Use Code
SINGLE FAMILY
Legal Description
2114 NURSERY RD 9 AC
Square Feet
1064
Topo
LEVEL
Utility
GAS | WELL | SEPTIC
Zoning
Please contact your municipal zoning officer
Deed Book
2021
Deed Page
015472
2026 Tax Values
Land Value / Taxable
48,600 / 48,600.00
Building Value / Taxable
53,900 / 53,900.00
Total Value / Taxable
102,500 / 102,500.00
Clean & Green
Inactive
Homestead Status
Active
Farmstead Status
Inactive
Lerta Amount
0
Lerta Expiration Year
0
Residential Data
Card 1
Style
OLD STYLE
Basement
FULL
Year Built
1930
Exterior Wall
ALUMINUM/VINYL
Total Living Area
1064
Full Baths
2
Half Baths
0
Fuel Type
GAS
Heating
CENTRAL
Heating System
HOT WATER
Stories
1.5
Total Bedrooms
2
Total Family Rooms
0
Total Rooms
5
Fireplaces
0
Other Buildings & Yards
Description
Built
Width
Length
Area
FRAME UTILITY SHED
1950
12
30
360
FRAME OR CB DETACHED GARAGE
1950
24
30
720
CARPORT
1990
16
30
480
FRAME UTILITY SHED
1960
14
24
336
FOUR SIDE CLOSED MTL POLE BLDG
1970
24
32
768
FRAME UTILITY SHED
1970
10
10
100
Sales History
Sale Date
Type
Price
Book / Page
Other Info
6/16/2021
LAND & BUILDING
138000
2021 / 015472
SPECIAL WARRANTY DEED
4/11/2017
LAND & BUILDING
89000
2017 / 007356
SPECIAL WARRANTY DEED
8/16/2016
LAND & BUILDING
1414
2016 / 017599
SHERIFF'S DED
10/26/2012
LAND & BUILDING
125000
2012 / 029482
WARRANTY/SURVIVORSHIP DEED
8/30/1993
0
0288 / 1189
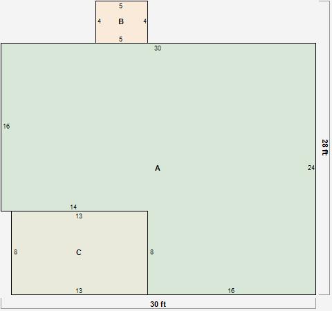
Parcel Sketches
Residential Card 1
A
MAIN
608 square feet
B
EFP ENCL FRAME PORCH
20 square feet
C
EFP ENCL FRAME PORCH
104 square feet
Parcel Images
Please note:
this tab is for informational purposes only and may not show all delinquencies, see the Taxes tab for more accurate delinquent taxes due.