Elected Officials
Courts
Departments
Initiatives
Open Government
About
Login / Register
Home
/
Property & Tax Records
/
Property Records
/
Property & Tax Search
/
Parcel Profile
/
Print View
Search for Another Parcel
Parcel Profile
Historical Card
Sketches
Photos
Tax Map
Taxes
Print View
Print This Page
Address: 8772 RIDGE RD
Parcel: 24005035000800
Parcel Profile
Address
8772 | RIDGE | RD
Street Status
PAVED
School District
GIRARD SCHOOL
Acreage
1.7830
Classification
R
Land Use Code
TWO FAMILY
Legal Description
8772 RIDGE RD 1.783 AC
Square Feet
2948
Topo
LEVEL
Utility
WELL | SEPTIC | GAS
Zoning
Please contact your municipal zoning officer
Deed Book
2021
Deed Page
004551
2025 Tax Values
Land Value / Taxable
32,400 / 32,400.00
Building Value / Taxable
108,130 / 108,130.00
Total Value / Taxable
140,530 / 140,530.00
Clean & Green
Inactive
Homestead Status
Inactive
Farmstead Status
Inactive
Lerta Amount
0
Lerta Expiration Year
0
Residential Data
Card 1
Style
CONVENTIONAL
Basement
FULL
Year Built
1925
Exterior Wall
FRAME
Total Living Area
2948
Full Baths
2
Half Baths
0
Fuel Type
GAS
Heating
CENTRAL
Heating System
FORCED AIR
Stories
2.0
Total Bedrooms
4
Total Family Rooms
2
Total Rooms
9
Fireplaces
0
Other Buildings & Yards
Description
Built
Width
Length
Area
FOUR SIDE CLOSED WD POLE BLDG
2013
32
48
1536
Sales History
Sale Date
Type
Price
Book / Page
Other Info
2/26/2021
LAND & BUILDING
0
2021 / 004551
SPECIAL WARRANTY DEED
12/8/2005
LAND & BUILDING
85000
1292 / 1791
WARRANTY/SURVIVORSHIP DEED
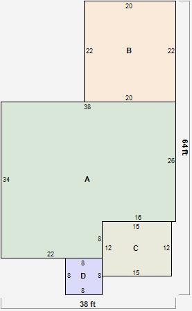
Parcel Sketches
Residential Card 1
A
MAIN
1164 square feet
B
1S FR ONE STORY FRAME AT UN ATTIC-UNFINISHED
440 square feet
C
1S FR ONE STORY FRAME
180 square feet
D
OFP OPEN FRAME PORCH
64 square feet
Parcel Images