Elected Officials
Courts
Departments
Initiatives
Open Government
About
Login / Register
Home
/
Property & Tax Records
/
Property Records
/
Property & Tax Search
/
Parcel Profile
/
Print View
Search for Another Parcel
Parcel Profile
Historical Card
Sketches
Photos
Tax Map
Taxes
Print View
Print This Page
Address: 4255 ELK PARK RD
Parcel: 24006028000500
Parcel Profile
Address
4255 | ELK PARK | RD
Street Status
PAVED
School District
GIRARD SCHOOL
Acreage
0.7317
Classification
R
Land Use Code
SINGLE FAMILY
Legal Description
4255 ELK PARK RD 75 X 425
Square Feet
1312
Topo
LEVEL
Utility
GAS | WELL | SEPTIC
Zoning
Please contact your municipal zoning officer
Deed Book
2014
Deed Page
010462
2026 Tax Values
Land Value / Taxable
33,800 / 33,800.00
Building Value / Taxable
65,300 / 65,300.00
Total Value / Taxable
99,100 / 99,100.00
Clean & Green
Inactive
Homestead Status
Active
Farmstead Status
Inactive
Lerta Amount
0
Lerta Expiration Year
0
Residential Data
Card 1
Style
OLD STYLE
Basement
FULL
Year Built
1909
Exterior Wall
ALUMINUM/VINYL
Total Living Area
1312
Full Baths
1
Half Baths
0
Fuel Type
GAS
Heating
CENTRAL
Heating System
FORCED AIR
Stories
2.0
Total Bedrooms
2
Total Family Rooms
0
Total Rooms
6
Fireplaces
0
Other Buildings & Yards
Description
Built
Width
Length
Area
FRAME OR CB DETACHED GARAGE
1909
20
20
400
FRAME UTILITY SHED
2015
12
16
192
Sales History
Sale Date
Type
Price
Book / Page
Other Info
5/29/2014
LAND & BUILDING
61500
2014 / 010462
SPECIAL WARRANTY DEED
9/5/1990
0
0136 / 0234
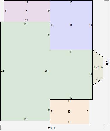
Parcel Sketches
Residential Card 1
A
MAIN
560 square feet
B
OFP OPEN FRAME PORCH
77 square feet
C
UNFIN BSMT BASEMENT UNFINISHED FRBAY FRAME BAY
24 square feet
D
UNFIN BSMT BASEMENT UNFINISHED 1S FR ONE STORY FRAME
168 square feet
E
OFP OPEN FRAME PORCH
78 square feet
Parcel Images
Please note:
this tab is for informational purposes only and may not show all delinquencies, see the Taxes tab for more accurate delinquent taxes due.