Elected Officials
Courts
Departments
Initiatives
Open Government
About
Login / Register
Home
/
Property & Tax Records
/
Property Records
/
Property & Tax Search
/
Parcel Profile
/
Print View
Search for Another Parcel
Parcel Profile
Historical Card
Sketches
Photos
Tax Map
Taxes
Print View
Print This Page
Address: 9925 OLD RIDGE ROAD
Parcel: 24011054000200
Parcel Profile
Address
9925 | OLD RIDGE | ROAD
Street Status
PAVED
School District
GIRARD SCHOOL
Acreage
1.0143
Classification
R
Land Use Code
SINGLE FAMILY
Legal Description
9925 OLD RIDGE 190.47X160IRR
Square Feet
1760
Topo
LEVEL
Utility
WELL | SEPTIC
Zoning
Please contact your municipal zoning officer
Deed Book
2023
Deed Page
004547
2026 Tax Values
Land Value / Taxable
30,000 / 30,000.00
Building Value / Taxable
74,900 / 74,900.00
Total Value / Taxable
104,900 / 104,900.00
Clean & Green
Inactive
Homestead Status
Inactive
Farmstead Status
Inactive
Lerta Amount
0
Lerta Expiration Year
0
Residential Data
Card 1
Style
OLD STYLE
Basement
FULL
Year Built
1880
Exterior Wall
FRAME
Total Living Area
1760
Full Baths
1
Half Baths
0
Fuel Type
GAS
Heating
CENTRAL A/C
Heating System
FORCED AIR
Stories
2.0
Total Bedrooms
3
Total Family Rooms
0
Total Rooms
9
Fireplaces
0
Other Buildings & Yards
Description
Built
Width
Length
Area
FOUR SIDE CLOSED MTL POLE BLDG
1987
24
36
864
Sales History
Sale Date
Type
Price
Book / Page
Other Info
3/24/2023
LAND & BUILDING
0
2023 / 004547
SPECIAL WARRANTY DEED
4/10/2019
LAND & BUILDING
47750
2019 / 006242
SPECIAL WARRANTY DEED
11/28/2017
LAND & BUILDING
1396
2017 / 026049
SHERIFF'S DED
5/10/1985
0
1579 / 0433
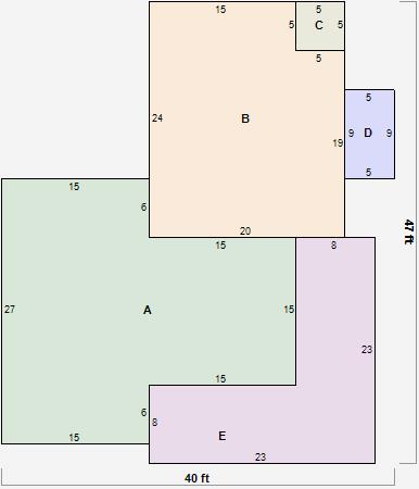
Parcel Sketches
Residential Card 1
A
MAIN
630 square feet
B
UNFIN BSMT BASEMENT UNFINISHED 1S FR ONE STORY FRAME
455 square feet
C
OFP OPEN FRAME PORCH
25 square feet
D
UNFIN BSMT BASEMENT UNFINISHED FRBAY FRAME BAY
45 square feet
E
OFP OPEN FRAME PORCH
304 square feet
Parcel Images
Please note:
this tab is for informational purposes only and may not show all delinquencies, see the Taxes tab for more accurate delinquent taxes due.