Elected Officials
Courts
Departments
Initiatives
Open Government
About
Login / Register
Home
/
Property & Tax Records
/
Property Records
/
Property & Tax Search
/
Parcel Profile
/
Print View
Search for Another Parcel
Parcel Profile
Historical Card
Sketches
Photos
Tax Map
Taxes
Print View
Print This Page
Address: 9280 TANNERY RD
Parcel: 24013036007201
Parcel Profile
Address
9280 | TANNERY | RD
Street Status
PAVED
School District
GIRARD SCHOOL
Acreage
1.6490
Classification
F
Land Use Code
20 - 79.99 ACRES
Legal Description
9280 TANNERY RD LOT 1 1.649 AC NET | 1.844 AC GROSS | MB 30-97, MB 1996-273
Square Feet
2750
Topo
LEVEL
Utility
GAS | WELL | SEPTIC
Zoning
Please contact your municipal zoning officer
Deed Book
2018
Deed Page
015082
2026 Tax Values
Land Value / Taxable
32,000 / 32,000.00
Building Value / Taxable
106,790 / 106,790.00
Total Value / Taxable
138,790 / 138,790.00
Clean & Green
Inactive
Homestead Status
Active
Farmstead Status
Inactive
Lerta Amount
0
Lerta Expiration Year
0
Residential Data
Card 1
Style
OLD STYLE
Basement
FULL
Year Built
1915
Exterior Wall
ALUMINUM/VINYL
Total Living Area
2750
Full Baths
1
Half Baths
1
Fuel Type
GAS
Heating
CENTRAL
Heating System
FORCED AIR
Stories
2.0
Total Bedrooms
3
Total Family Rooms
1
Total Rooms
7
Fireplaces
0
Other Buildings & Yards
Description
Built
Width
Length
Area
FRAME UTILITY SHED
2005
12
20
240
FRAME OR CB DETACHED GARAGE
2022
40
30
1200
Sales History
Sale Date
Type
Price
Book / Page
Other Info
7/26/2018
LAND & BUILDING
0
2018 / 015082
QUIT CLAIM DEED
11/22/1988
0
0071 / 0592
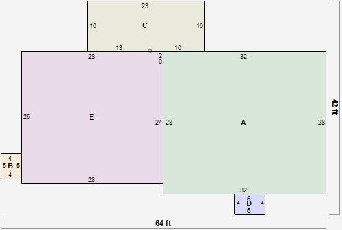
Parcel Sketches
Residential Card 1
A
MAIN
896 square feet
B
OFP OPEN FRAME PORCH
20 square feet
C
1S FR ONE STORY FRAME
230 square feet
D
MA STOOP/TERR MAS STOOP
24 square feet
E
UNFIN BSMT BASEMENT UNFINISHED 1S FR ONE STORY FRAME
728 square feet
Parcel Images
Please note:
this tab is for informational purposes only and may not show all delinquencies, see the Taxes tab for more accurate delinquent taxes due.