Elected Officials
Courts
Departments
Initiatives
Open Government
About
Login / Register
Home
/
Property & Tax Records
/
Property Records
/
Property & Tax Search
/
Parcel Profile
/
Print View
Search for Another Parcel
Parcel Profile
Historical Card
Sketches
Photos
Tax Map
Taxes
Print View
Print This Page
Address: 6751 MILLER RD
Parcel: 24013040001101
Parcel Profile
Address
6751 | MILLER | RD
Street Status
PAVED
School District
GIRARD SCHOOL
Acreage
2.0000
Classification
R
Land Use Code
SINGLE FAMILY
Legal Description
6751 MILLER RD 2 AC
Square Feet
1378
Topo
LEVEL
Utility
GAS | WELL | SEPTIC
Zoning
Please contact your municipal zoning officer
Deed Book
1187
Deed Page
0285
2025 Tax Values
Land Value / Taxable
33,000 / 33,000.00
Building Value / Taxable
54,100 / 54,100.00
Total Value / Taxable
87,100 / 87,100.00
Clean & Green
Inactive
Homestead Status
Inactive
Farmstead Status
Inactive
Lerta Amount
0
Lerta Expiration Year
0
Residential Data
Card 1
Style
OLD STYLE
Basement
FULL
Year Built
1900
Exterior Wall
ALUMINUM/VINYL
Total Living Area
1378
Full Baths
1
Half Baths
0
Fuel Type
GAS
Heating
CENTRAL
Heating System
FORCED AIR
Stories
2.0
Total Bedrooms
3
Total Family Rooms
1
Total Rooms
10
Fireplaces
0
Other Buildings & Yards
Description
Built
Width
Length
Area
FRAME OR CB DETACHED GARAGE
1960
24
26
624
FOUR SIDE CLOSED WD POLE BLDG
1960
24
30
720
Sales History
Sale Date
Type
Price
Book / Page
Other Info
12/10/1975
0
1187 / 0285
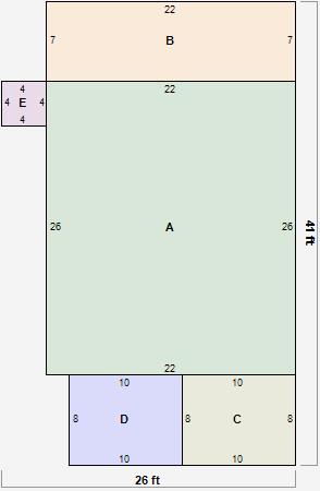
Parcel Sketches
Residential Card 1
A
MAIN
572 square feet
B
1S FR ONE STORY FRAME
154 square feet
C
OFP OPEN FRAME PORCH
80 square feet
D
1S FR ONE STORY FRAME
80 square feet
E
WDDCK WOOD DECKS
16 square feet
Parcel Images