Elected Officials
Courts
Departments
Initiatives
Open Government
About
Login / Register
Home
/
Property & Tax Records
/
Property Records
/
Property & Tax Search
/
Parcel Profile
/
Print View
Search for Another Parcel
Parcel Profile
Historical Card
Sketches
Photos
Tax Map
Taxes
Print View
Print This Page
Address: 9380 S CREEK RD
Parcel: 24017095000800
Parcel Profile
Address
9380 | S | CREEK | RD
Street Status
PAVED
School District
GIRARD SCHOOL
Acreage
21.8200
Classification
F
Land Use Code
20 - 79.99 ACRES
Legal Description
9380 SOUTH CREEK RD 21.82 AC
Square Feet
1825
Topo
LEVEL
Utility
WELL | SEPTIC
Zoning
Please contact your municipal zoning officer
Deed Book
1326
Deed Page
0231
2026 Tax Values
Land Value / Taxable
41,500 / 27,700.00
Building Value / Taxable
83,290 / 83,290.00
Total Value / Taxable
124,790 / 110,990.00
Clean & Green
Active
Homestead Status
Active
Farmstead Status
Inactive
Lerta Amount
0
Lerta Expiration Year
0
Residential Data
Card 1
Style
OLD STYLE
Basement
FULL
Year Built
1900
Exterior Wall
ALUMINUM/VINYL
Total Living Area
1825
Full Baths
1
Half Baths
0
Fuel Type
OIL
Heating
CENTRAL
Heating System
FORCED AIR
Stories
2.0
Total Bedrooms
4
Total Family Rooms
1
Total Rooms
8
Fireplaces
0
Other Buildings & Yards
Description
Built
Width
Length
Area
FOUR SIDE CLOSED MTL POLE BLDG
2013
36
30
1080
FRAME UTILITY SHED
2010
8
8
64
Sales History
Sale Date
Type
Price
Book / Page
Other Info
10/24/1978
0
1326 / 0231
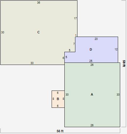
Parcel Sketches
Residential Card 1
A
MAIN
780 square feet
B
MA STOOP/TERR MAS STOOP
48 square feet
C
FR GR FRAME GARAGE
1037 square feet
D
1S FR ONE STORY FRAME
265 square feet
Parcel Images
Please note:
this tab is for informational purposes only and may not show all delinquencies, see the Taxes tab for more accurate delinquent taxes due.