Elected Officials
Courts
Departments
Initiatives
Open Government
About
Login / Register
Home
/
Property & Tax Records
/
Property Records
/
Property & Tax Search
/
Parcel Profile
/
Print View
Search for Another Parcel
Parcel Profile
Historical Card
Sketches
Photos
Tax Map
Taxes
Print View
Print This Page
Address: 7400 MEADVILLE RD
Parcel: 24019082000300
Parcel Profile
Address
7400 | MEADVILLE | RD
Street Status
PAVED
School District
GIRARD SCHOOL
Acreage
21.0000
Classification
F
Land Use Code
20 - 79.99 ACRES
Legal Description
7400 MEADVILLE RD 21 AC
Square Feet
1403
Topo
LEVEL
Utility
WELL | SEPTIC
Zoning
Please contact your municipal zoning officer
Deed Book
0068
Deed Page
0408
2026 Tax Values
Land Value / Taxable
78,000 / 42,400.00
Building Value / Taxable
43,100 / 43,100.00
Total Value / Taxable
121,100 / 85,500.00
Clean & Green
Active
Homestead Status
Inactive
Farmstead Status
Inactive
Lerta Amount
0
Lerta Expiration Year
0
Residential Data
Card 1
Style
CONVENTIONAL
Basement
FULL
Year Built
1937
Exterior Wall
ALUMINUM/VINYL
Total Living Area
1403
Full Baths
1
Half Baths
0
Fuel Type
GAS
Heating
CENTRAL
Heating System
FORCED AIR
Stories
1.5
Total Bedrooms
3
Total Family Rooms
0
Total Rooms
6
Fireplaces
0
Other Buildings & Yards
No OBY Data Found
Sales History
Sale Date
Type
Price
Book / Page
Other Info
10/20/1988
0
0068 / 0408
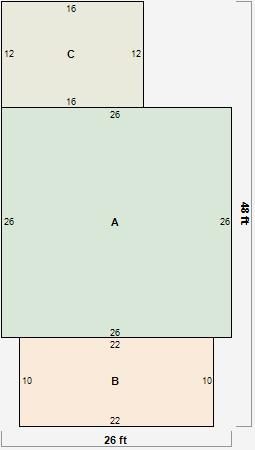
Parcel Sketches
Residential Card 1
A
MAIN
676 square feet
B
1S FR ONE STORY FRAME
220 square feet
C
WDDCK WOOD DECKS
192 square feet
Parcel Images
Please note:
this tab is for informational purposes only and may not show all delinquencies, see the Taxes tab for more accurate delinquent taxes due.