Elected Officials
Courts
Departments
Initiatives
Open Government
About
Login / Register
Home
/
Property & Tax Records
/
Property Records
/
Property & Tax Search
/
Parcel Profile
/
Print View
Search for Another Parcel
Parcel Profile
Historical Card
Sketches
Photos
Tax Map
Taxes
Print View
Print This Page
Address: 3891 KNOYLE RD
Parcel: 25002010000900
Parcel Profile
Address
3891 | KNOYLE | RD
Street Status
PAVED
School District
WATTSBURG SCHOOL
Acreage
1.2400
Classification
R
Land Use Code
SINGLE FAMILY
Legal Description
3891 KNOYLE RD PCL 5 1.24 AC
Square Feet
1694
Topo
LEVEL
Utility
WELL | SEPTIC
Zoning
Please contact your municipal zoning officer
Deed Book
0710
Deed Page
1078
2026 Tax Values
Land Value / Taxable
36,900 / 36,900.00
Building Value / Taxable
44,010 / 44,010.00
Total Value / Taxable
80,910 / 80,910.00
Clean & Green
Inactive
Homestead Status
Inactive
Farmstead Status
Inactive
Lerta Amount
0
Lerta Expiration Year
0
Residential Data
Card 1
Style
OLD STYLE
Basement
FULL
Year Built
1900
Exterior Wall
FRAME
Total Living Area
1694
Full Baths
2
Half Baths
0
Fuel Type
OIL
Heating
CENTRAL
Heating System
FORCED AIR
Stories
2.0
Total Bedrooms
5
Total Family Rooms
0
Total Rooms
8
Fireplaces
0
Other Buildings & Yards
No OBY Data Found
Sales History
Sale Date
Type
Price
Book / Page
Other Info
6/20/2000
LAND & BUILDING
72500
0710 / 1078
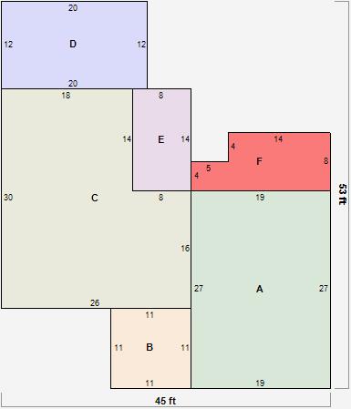
Parcel Sketches
Residential Card 1
A
MAIN
513 square feet
B
EFP ENCL FRAME PORCH
121 square feet
C
1S FR ONE STORY FRAME
668 square feet
D
FR GR FRAME GARAGE
240 square feet
E
MA STOOP/TERR MAS STOOP
112 square feet
F
WDDCK WOOD DECKS
132 square feet
Parcel Images
Please note:
this tab is for informational purposes only and may not show all delinquencies, see the Taxes tab for more accurate delinquent taxes due.