Elected Officials
Courts
Departments
Initiatives
Open Government
About
Login / Register
Home
/
Property & Tax Records
/
Property Records
/
Property & Tax Search
/
Parcel Profile
/
Print View
Search for Another Parcel
Parcel Profile
Historical Card
Sketches
Photos
Tax Map
Taxes
Print View
Print This Page
Address: 10000 WALES RD
Parcel: 25004016000300
Parcel Profile
Address
10000 | WALES | RD
Street Status
PAVED
School District
WATTSBURG SCHOOL
Acreage
20.8900
Classification
R
Land Use Code
DWELLING W/ COMMERCIAL USE PRIMARY COMM
Legal Description
10000 WALES RD 21.89 AC
Square Feet
1257
Topo
ROLLING
Utility
GAS | WELL | SEPTIC
Zoning
Please contact your municipal zoning officer
Deed Book
2012
Deed Page
002861
2026 Tax Values
Land Value / Taxable
69,800 / 69,800.00
Building Value / Taxable
79,400 / 79,400.00
Total Value / Taxable
149,200 / 149,200.00
Clean & Green
Inactive
Homestead Status
Inactive
Farmstead Status
Inactive
Lerta Amount
0
Lerta Expiration Year
0
Residential Data
Card 1
Style
RANCH
Basement
FULL
Year Built
1900
Exterior Wall
ALUMINUM/VINYL
Total Living Area
1257
Full Baths
1
Half Baths
0
Fuel Type
GAS
Heating
CENTRAL
Heating System
FORCED AIR
Stories
1.0
Total Bedrooms
3
Total Family Rooms
1
Total Rooms
5
Fireplaces
0
Other Buildings & Yards
Description
Built
Width
Length
Area
FRAME OR CB DETACHED GARAGE
1976
36
40
1440
FRAME UTILITY SHED
1950
18
30
540
Sales History
Sale Date
Type
Price
Book / Page
Other Info
2/1/2012
LAND & BUILDING
0
2012 / 002861
SPECIAL WARRANTY DEED
2/1/2012
LAND & BUILDING
0
2012 / 002860
FIDUCIARY DEED
10/5/1953
0
0661 / 0589
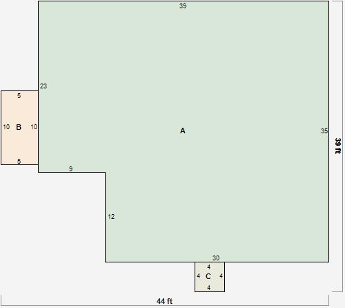
Parcel Sketches
Residential Card 1
A
MAIN
1257 square feet
B
EFP ENCL FRAME PORCH
50 square feet
C
MA STOOP/TERR MAS STOOP
16 square feet
Parcel Images
Please note:
this tab is for informational purposes only and may not show all delinquencies, see the Taxes tab for more accurate delinquent taxes due.