Elected Officials
Courts
Departments
Initiatives
Open Government
About
Login / Register
Home
/
Property & Tax Records
/
Property Records
/
Property & Tax Search
/
Parcel Profile
/
Print View
Search for Another Parcel
Parcel Profile
Historical Card
Sketches
Photos
Tax Map
Taxes
Print View
Print This Page
Address: 10308 WALES RD
Parcel: 25005017000200
Parcel Profile
Address
10308 | WALES | RD
Street Status
SEMI IMPROVED
School District
WATTSBURG SCHOOL
Acreage
1.0000
Classification
R
Land Use Code
SINGLE FAMILY
Legal Description
10308 WALES RD 1 AC
Square Feet
1358
Topo
LEVEL
Utility
GAS | WELL | SEPTIC
Zoning
Please contact your municipal zoning officer
Deed Book
1443
Deed Page
0236
2026 Tax Values
Land Value / Taxable
35,500 / 35,500.00
Building Value / Taxable
77,110 / 77,110.00
Total Value / Taxable
112,610 / 112,610.00
Clean & Green
Inactive
Homestead Status
Active
Farmstead Status
Inactive
Lerta Amount
0
Lerta Expiration Year
0
Residential Data
Card 1
Style
OLD STYLE
Basement
FULL
Year Built
1910
Exterior Wall
ALUMINUM/VINYL
Total Living Area
1358
Full Baths
1
Half Baths
0
Fuel Type
OIL
Heating
CENTRAL
Heating System
FORCED AIR
Stories
2.0
Total Bedrooms
3
Total Family Rooms
0
Total Rooms
6
Fireplaces
0
Other Buildings & Yards
Description
Built
Width
Length
Area
FRAME OR CB DETACHED GARAGE
1997
32
32
1024
Sales History
Sale Date
Type
Price
Book / Page
Other Info
12/23/1981
0
1443 / 0236
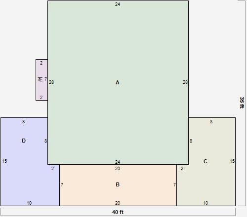
Parcel Sketches
Residential Card 1
A
MAIN
672 square feet
B
OFP OPEN FRAME PORCH
140 square feet
C
OFP OPEN FRAME PORCH
134 square feet
D
OFP OPEN FRAME PORCH
134 square feet
E
FROVR FRAME OVERHANG
14 square feet
Parcel Images
Please note:
this tab is for informational purposes only and may not show all delinquencies, see the Taxes tab for more accurate delinquent taxes due.