Elected Officials
Courts
Departments
Initiatives
Open Government
About
Login / Register
Home
/
Property & Tax Records
/
Property Records
/
Property & Tax Search
/
Parcel Profile
/
Print View
Search for Another Parcel
Parcel Profile
Historical Card
Sketches
Photos
Tax Map
Taxes
Print View
Print This Page
Address: 10190 JONES RD
Parcel: 25005020001000
Parcel Profile
Address
10190 | JONES | RD
Street Status
PAVED
School District
WATTSBURG SCHOOL
Acreage
10.4900
Classification
E
Land Use Code
EXEMPT SERVICE CONNECTED (VETERANS)
Legal Description
10190 JONES RD 10.49 AC
Square Feet
1696
Topo
LEVEL
Utility
GAS | WELL | SEPTIC
Zoning
Please contact your municipal zoning officer
Deed Book
0655
Deed Page
2355
2026 Tax Values
Land Value / Taxable
39,800 / 37,400.00
Building Value / Taxable
137,110 / 137,110.00
Total Value / Taxable
176,910 / 174,510.00
Clean & Green
Active
Homestead Status
Inactive
Farmstead Status
Inactive
Lerta Amount
0
Lerta Expiration Year
0
Residential Data
Card 1
Style
OLD STYLE
Basement
FULL
Year Built
1900
Exterior Wall
ALUMINUM/VINYL
Total Living Area
1696
Full Baths
1
Half Baths
1
Fuel Type
PROPANE
Heating
CENTRAL
Heating System
HOT WATER
Stories
2.0
Total Bedrooms
3
Total Family Rooms
0
Total Rooms
8
Fireplaces
1
Other Buildings & Yards
Description
Built
Width
Length
Area
FRAME OR CB DETACHED GARAGE
1969
40
26
1040
FRAME OR CB DETACHED GARAGE
2005
32
56
1792
FRAME UTILITY SHED
2007
15
18
270
Sales History
Sale Date
Type
Price
Book / Page
Other Info
8/13/1999
LAND & BUILDING
179900
0655 / 2355
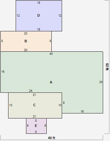
Parcel Sketches
Residential Card 1
A
MAIN
768 square feet
B
1S FR ONE STORY FRAME
160 square feet
C
EFP ENCL FRAME PORCH
210 square feet
D
EFP ENCL FRAME PORCH
216 square feet
E
MA STOOP/TERR MAS STOOP
48 square feet
Parcel Images
Please note:
this tab is for informational purposes only and may not show all delinquencies, see the Taxes tab for more accurate delinquent taxes due.