Elected Officials
Courts
Departments
Initiatives
Open Government
About
Login / Register
Home
/
Property & Tax Records
/
Property Records
/
Property & Tax Search
/
Parcel Profile
/
Print View
Search for Another Parcel
Parcel Profile
Historical Card
Sketches
Photos
Tax Map
Taxes
Print View
Print This Page
Address: 5659 KNOYLE RD
Parcel: 25005021000200
Parcel Profile
Address
5659 | KNOYLE | RD
Street Status
PAVED
School District
WATTSBURG SCHOOL
Acreage
69.2900
Classification
F
Land Use Code
20 - 79.99 ACRES
Legal Description
5659 KNOYLE RD 69.29 AC
Square Feet
1188
Topo
LEVEL
Utility
WELL | SEPTIC
Zoning
Please contact your municipal zoning officer
Deed Book
0667
Deed Page
1425
2025 Tax Values
Land Value / Taxable
136,500 / 79,600.00
Building Value / Taxable
25,870 / 25,870.00
Total Value / Taxable
162,370 / 105,470.00
Clean & Green
Active
Homestead Status
Inactive
Farmstead Status
Inactive
Lerta Amount
0
Lerta Expiration Year
0
Residential Data
Card 1
Style
BUNGALOW
Basement
FULL
Year Built
1900
Exterior Wall
FRAME
Total Living Area
1188
Full Baths
1
Half Baths
0
Fuel Type
GAS
Heating
CENTRAL
Heating System
FORCED AIR
Stories
1.0
Total Bedrooms
2
Total Family Rooms
0
Total Rooms
6
Fireplaces
0
Other Buildings & Yards
No OBY Data Found
Sales History
Sale Date
Type
Price
Book / Page
Other Info
10/13/1999
LAND & BUILDING
98000
0667 / 1425
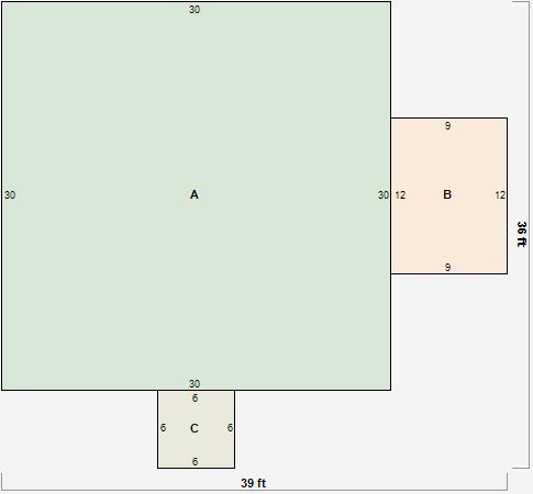
Parcel Sketches
Residential Card 1
A
MAIN
900 square feet
B
UNFIN BSMT BASEMENT UNFINISHED 1S FR ONE STORY FRAME
108 square feet
C
WDDCK WOOD DECKS
36 square feet
Parcel Images