Elected Officials
Courts
Departments
Initiatives
Open Government
About
Login / Register
Home
/
Property & Tax Records
/
Property Records
/
Property & Tax Search
/
Parcel Profile
/
Print View
Search for Another Parcel
Parcel Profile
Historical Card
Sketches
Photos
Tax Map
Taxes
Print View
Print This Page
Address: 6839 FILLEY RD
Parcel: 25006019000300
Parcel Profile
Address
6839 | FILLEY | RD
Street Status
PAVED
School District
WATTSBURG SCHOOL
Acreage
15.0910
Classification
F
Land Use Code
10-19.99 ACRES
Legal Description
6839 FILLEY RD LOT 1 15.01 AC
Square Feet
1440
Topo
ROLLING
Utility
WELL | SEPTIC
Zoning
Please contact your municipal zoning officer
Deed Book
2012
Deed Page
010374
2026 Tax Values
Land Value / Taxable
56,700 / 56,700.00
Building Value / Taxable
65,000 / 65,000.00
Total Value / Taxable
121,700 / 121,700.00
Clean & Green
Inactive
Homestead Status
Active
Farmstead Status
Inactive
Lerta Amount
0
Lerta Expiration Year
0
Residential Data
Card 1
Style
OLD STYLE
Basement
FULL
Year Built
1900
Exterior Wall
ALUMINUM/VINYL
Total Living Area
1440
Full Baths
1
Half Baths
0
Fuel Type
OIL
Heating
CENTRAL
Heating System
FORCED AIR
Stories
2.0
Total Bedrooms
4
Total Family Rooms
0
Total Rooms
7
Fireplaces
0
Other Buildings & Yards
Description
Built
Width
Length
Area
FRAME OR CB DETACHED GARAGE
1936
24
30
720
FRAME UTILITY SHED
2000
24
10
240
Sales History
Sale Date
Type
Price
Book / Page
Other Info
4/26/2012
LAND & BUILDING
0
2012 / 010374
CORRECTIVE DEED
3/9/2012
0
2012 / 006173
WARRANTY/SURVIVORSHIP DEED
4/30/1986
0
1626 / 0546
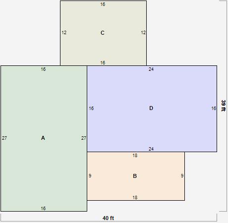
Parcel Sketches
Residential Card 1
A
MAIN
432 square feet
B
OFP OPEN FRAME PORCH
162 square feet
C
1S FR ONE STORY FRAME
192 square feet
D
1S FR ONE STORY FRAME
384 square feet
Parcel Images
Please note:
this tab is for informational purposes only and may not show all delinquencies, see the Taxes tab for more accurate delinquent taxes due.