Elected Officials
Courts
Departments
Initiatives
Open Government
About
Login / Register
Home
/
Property & Tax Records
/
Property Records
/
Property & Tax Search
/
Parcel Profile
/
Print View
Search for Another Parcel
Parcel Profile
Historical Card
Sketches
Photos
Tax Map
Taxes
Print View
Print This Page
Address: 9892 SAMPSON RD
Parcel: 25013058001800
Parcel Profile
Address
9892 | SAMPSON | RD
Street Status
PAVED
School District
WATTSBURG SCHOOL
Acreage
52.4398
Classification
F
Land Use Code
20 - 79.99 ACRES
Legal Description
9892 SAMPSON RD 52.4398 AC
Square Feet
1760
Topo
LEVEL
Utility
WELL | SEPTIC
Zoning
Please contact your municipal zoning officer
Deed Book
1353
Deed Page
1131
2026 Tax Values
Land Value / Taxable
99,800 / 60,800.00
Building Value / Taxable
65,320 / 65,320.00
Total Value / Taxable
165,120 / 126,120.00
Clean & Green
Active
Homestead Status
Active
Farmstead Status
Inactive
Lerta Amount
0
Lerta Expiration Year
0
Residential Data
Card 1
Style
OLD STYLE
Basement
FULL
Year Built
1900
Exterior Wall
ALUMINUM/VINYL
Total Living Area
1760
Full Baths
1
Half Baths
1
Fuel Type
COAL/WOOD
Heating
NON CENTRAL
Heating System
NONE
Stories
2.0
Total Bedrooms
4
Total Family Rooms
0
Total Rooms
6
Fireplaces
0
Other Buildings & Yards
Description
Built
Width
Length
Area
BANK BARN
1900
28
48
1344
Sales History
Sale Date
Type
Price
Book / Page
Other Info
8/17/2006
LAND & BUILDING
0
1353 / 1131
WARRANTY/SURVIVORSHIP DEED
9/16/2002
LAND & BUILDING
0
0920 / 1876
SPECIAL WARRANTY DEED
8/11/1942
0
0420 / 0182
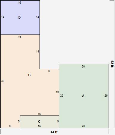
Parcel Sketches
Residential Card 1
A
MAIN
520 square feet
B
1S FR ONE STORY FRAME
720 square feet
C
OFP OPEN FRAME PORCH
80 square feet
D
FR UT FRAME UTILITY BUILDING
224 square feet
Parcel Images
Please note:
this tab is for informational purposes only and may not show all delinquencies, see the Taxes tab for more accurate delinquent taxes due.