Elected Officials
Courts
Departments
Initiatives
Open Government
About
Login / Register
Home
/
Property & Tax Records
/
Property Records
/
Property & Tax Search
/
Parcel Profile
/
Print View
Search for Another Parcel
Parcel Profile
Historical Card
Sketches
Photos
Tax Map
Taxes
Print View
Print This Page
Address: 10528 WATTSBURG RD
Parcel: 25017049000100
Parcel Profile
Address
10528 | WATTSBURG | RD
Street Status
PAVED
School District
WATTSBURG SCHOOL
Acreage
9.4900
Classification
R
Land Use Code
MULTIPLE DWELLINGS
Legal Description
10528 WATTSBURG RD 9.49 AC
Square Feet
2884
Topo
LEVEL
Utility
GAS | WELL | SEPTIC
Zoning
Please contact your municipal zoning officer
Deed Book
1313
Deed Page
0426
2026 Tax Values
Land Value / Taxable
66,600 / 66,600.00
Building Value / Taxable
120,200 / 120,200.00
Total Value / Taxable
186,800 / 186,800.00
Clean & Green
Inactive
Homestead Status
Inactive
Farmstead Status
Inactive
Lerta Amount
0
Lerta Expiration Year
0
Residential Data
Card 1
Style
BUNGALOW
Basement
FULL
Year Built
1933
Exterior Wall
ALUMINUM/VINYL
Total Living Area
884
Full Baths
1
Half Baths
0
Fuel Type
GAS
Heating
CENTRAL
Heating System
FORCED AIR
Stories
1.0
Total Bedrooms
3
Total Family Rooms
0
Total Rooms
5
Fireplaces
0
Card 2
Style
OTHER
Basement
NONE
Year Built
1930
Exterior Wall
FRAME
Total Living Area
2000
Full Baths
2
Half Baths
0
Fuel Type
GAS
Heating
CENTRAL
Heating System
FORCED AIR
Stories
2.0
Total Bedrooms
4
Total Family Rooms
0
Total Rooms
9
Fireplaces
0
Other Buildings & Yards
Description
Built
Width
Length
Area
FOUR SIDE CLOSED MTL POLE BLDG
2008
30
60
1800
CANOPY
2008
12
60
720
Sales History
Sale Date
Type
Price
Book / Page
Other Info
7/21/1978
0
1313 / 0426
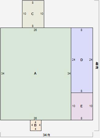
Parcel Sketches
Residential Card 1
A
MAIN
884 square feet
B
MA STOOP/TERR MAS STOOP
16 square feet
C
EFP ENCL FRAME PORCH
80 square feet
D
OFP OPEN FRAME PORCH
192 square feet
E
EFP ENCL FRAME PORCH
80 square feet
Residential Card 2
A
MAIN
1000 square feet
B
WDDCK WOOD DECKS
40 square feet
C
WDDCK WOOD DECKS
32 square feet
Parcel Images
Please note:
this tab is for informational purposes only and may not show all delinquencies, see the Taxes tab for more accurate delinquent taxes due.