Elected Officials
Courts
Departments
Initiatives
Open Government
About
Login / Register
Home
/
Property & Tax Records
/
Property Records
/
Property & Tax Search
/
Parcel Profile
/
Print View
Search for Another Parcel
Parcel Profile
Historical Card
Sketches
Photos
Tax Map
Taxes
Print View
Print This Page
Address: 6580 TURNER RD
Parcel: 25018046001000
Parcel Profile
Address
6580 | TURNER | RD
Street Status
PAVED
School District
WATTSBURG SCHOOL
Acreage
1.8780
Classification
R
Land Use Code
SINGLE FAMILY
Legal Description
6580 TURNER RD LOT 2 1.878 AC
Square Feet
1515
Topo
LEVEL
Utility
WELL | SEPTIC
Zoning
Please contact your municipal zoning officer
Deed Book
2020
Deed Page
020234
2026 Tax Values
Land Value / Taxable
36,700 / 36,700.00
Building Value / Taxable
90,290 / 90,290.00
Total Value / Taxable
126,990 / 126,990.00
Clean & Green
Inactive
Homestead Status
Active
Farmstead Status
Inactive
Lerta Amount
0
Lerta Expiration Year
0
Residential Data
Card 1
Style
BUNGALOW
Basement
CRAWL
Year Built
1900
Exterior Wall
ALUMINUM/VINYL
Total Living Area
1515
Full Baths
2
Half Baths
0
Fuel Type
ELECTRIC
Heating
NON CENTRAL
Heating System
ELECTRIC
Stories
1.0
Total Bedrooms
3
Total Family Rooms
0
Total Rooms
5
Fireplaces
0
Other Buildings & Yards
Description
Built
Width
Length
Area
FOUR SIDE CLOSED WD POLE BLDG
1970
18
20
360
FRAME OR CB DETACHED GARAGE
2011
24
30
720
Sales History
Sale Date
Type
Price
Book / Page
Other Info
10/1/2020
LAND & BUILDING
0
2020 / 020234
QUIT CLAIM DEED
11/26/2007
LAND & BUILDING
120000
1461 / 2106
DEED
6/29/2001
LAND & BUILDING
99000
788 / 54
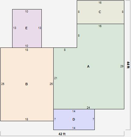
Parcel Sketches
Residential Card 1
A
MAIN
632 square feet
B
UNFIN BSMT BASEMENT UNFINISHED 1S FR ONE STORY FRAME AT FN ATTIC-FINISHED
450 square feet
C
FR UT FRAME UTILITY BUILDING
128 square feet
D
OFP OPEN FRAME PORCH
98 square feet
E
WDDCK WOOD DECKS
130 square feet
Parcel Images
Please note:
this tab is for informational purposes only and may not show all delinquencies, see the Taxes tab for more accurate delinquent taxes due.