Elected Officials
Courts
Departments
Initiatives
Open Government
About
Login / Register
Home
/
Property & Tax Records
/
Property Records
/
Property & Tax Search
/
Parcel Profile
/
Print View
Search for Another Parcel
Parcel Profile
Historical Card
Sketches
Photos
Tax Map
Taxes
Print View
Print This Page
Address: 10940 W GREENE RD
Parcel: 25020055000800
Parcel Profile
Address
10940 | W | GREENE | RD
Street Status
PAVED
School District
WATTSBURG SCHOOL
Acreage
70.0000
Classification
F
Land Use Code
20 - 79.99 ACRES
Legal Description
10940 WEST GREENE RD 70 AC
Square Feet
2400
Topo
LEVEL
Utility
GAS | WELL | SEPTIC
Zoning
Please contact your municipal zoning officer
Deed Book
2012
Deed Page
015806
2026 Tax Values
Land Value / Taxable
179,100 / 43,400.00
Building Value / Taxable
114,200 / 114,200.00
Total Value / Taxable
293,300 / 157,600.00
Clean & Green
Active
Homestead Status
Active
Farmstead Status
Active
Lerta Amount
0
Lerta Expiration Year
0
Residential Data
Card 1
Style
OLD STYLE
Basement
FULL
Year Built
1883
Exterior Wall
FRAME
Total Living Area
2400
Full Baths
1
Half Baths
0
Fuel Type
GAS
Heating
CENTRAL
Heating System
FORCED AIR
Stories
2.0
Total Bedrooms
4
Total Family Rooms
1
Total Rooms
9
Fireplaces
0
Other Buildings & Yards
Description
Built
Width
Length
Area
FLAT BARN
1910
24
30
720
FRAME UTILITY SHED
1910
15
20
300
BANK BARN
1910
60
60
3600
BANK BARN ADDITION
1910
20
20
400
ATTACHED CB MILK HOUSE
1910
14
14
196
MASONRY SHED
1910
20
20
400
FOUR SIDE CLOSED WD POLE BLDG
1952
20
40
800
FLAT BARN ADDITION
1910
25
32
800
FLAT BARN
1910
35
32
1120
FLAT BARN ADDITION
1910
13
34
442
Sales History
Sale Date
Type
Price
Book / Page
Other Info
6/19/2012
LAND & BUILDING
325000
2012 / 015806
SPECIAL WARRANTY DEED
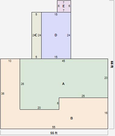
Parcel Sketches
Residential Card 1
A
MAIN
1020 square feet
B
OFP OPEN FRAME PORCH
960 square feet
C
OFP OPEN FRAME PORCH
120 square feet
D
UNFIN BSMT BASEMENT UNFINISHED 1S FR ONE STORY FRAME
360 square feet
E
FR UT FRAME UTILITY BUILDING
42 square feet
Parcel Images
Please note:
this tab is for informational purposes only and may not show all delinquencies, see the Taxes tab for more accurate delinquent taxes due.