Elected Officials
Courts
Departments
Initiatives
Open Government
About
Login / Register
Home
/
Property & Tax Records
/
Property Records
/
Property & Tax Search
/
Parcel Profile
/
Print View
Search for Another Parcel
Parcel Profile
Historical Card
Sketches
Photos
Tax Map
Taxes
Print View
Print This Page
Address: 10480 LAKE PLEASANT RD
Parcel: 25020055002300
Parcel Profile
Address
10480 | LAKE PLEASANT | RD
Street Status
PAVED
School District
WATTSBURG SCHOOL
Acreage
73.3900
Classification
F
Land Use Code
20 - 79.99 ACRES
Legal Description
10480 LK PLEASANT RD 73.39 AC
Square Feet
1908
Topo
ABOVE STREET
Utility
WELL | SEPTIC
Zoning
Please contact your municipal zoning officer
Deed Book
2021
Deed Page
023584
2026 Tax Values
Land Value / Taxable
151,200 / 41,400.00
Building Value / Taxable
232,740 / 232,740.00
Total Value / Taxable
383,940 / 274,140.00
Clean & Green
Active
Homestead Status
Active
Farmstead Status
Active
Lerta Amount
0
Lerta Expiration Year
0
Residential Data
Card 1
Style
OLD STYLE
Basement
FULL
Year Built
1890
Exterior Wall
ALUMINUM/VINYL
Total Living Area
1908
Full Baths
2
Half Baths
1
Fuel Type
PROPANE
Heating
CENTRAL A/C
Heating System
FORCED AIR
Stories
2.0
Total Bedrooms
4
Total Family Rooms
1
Total Rooms
7
Fireplaces
0
Other Buildings & Yards
Description
Built
Width
Length
Area
FOUR SIDE CLOSED MTL POLE BLDG
1969
40
64
2560
FLAT BARN
1972
36
72
2592
ATTACHED CB MILK HOUSE
1972
15
18
270
Sales History
Sale Date
Type
Price
Book / Page
Other Info
9/2/2021
LAND & BUILDING
540000
2021 / 023584
FIDUCIARY DEED
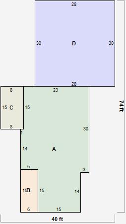
Parcel Sketches
Residential Card 1
A
MAIN
909 square feet
B
1S FR ONE STORY FRAME
90 square feet
C
OFP OPEN FRAME PORCH
120 square feet
D
FR GR FRAME GARAGE
840 square feet
Parcel Images
Please note:
this tab is for informational purposes only and may not show all delinquencies, see the Taxes tab for more accurate delinquent taxes due.