Elected Officials
Courts
Departments
Initiatives
Open Government
About
Login / Register
Home
/
Property & Tax Records
/
Property Records
/
Property & Tax Search
/
Parcel Profile
/
Print View
Search for Another Parcel
Parcel Profile
Historical Card
Sketches
Photos
Tax Map
Taxes
Print View
Print This Page
Address: 3839 BROWN RD
Parcel: 25025064000400
Parcel Profile
Address
3839 | BROWN | RD
Street Status
PAVED
School District
WATTSBURG SCHOOL
Acreage
155.2300
Classification
F
Land Use Code
80 ACRES OR MORE
Legal Description
3839 BROWN RD 155.23 AC
Square Feet
1157
Topo
LEVEL
Utility
WELL | SEPTIC
Zoning
Please contact your municipal zoning officer
Deed Book
1577
Deed Page
0917
2026 Tax Values
Land Value / Taxable
182,200 / 125,500.00
Building Value / Taxable
29,200 / 29,200.00
Total Value / Taxable
211,400 / 154,700.00
Clean & Green
Active
Homestead Status
Active
Farmstead Status
Inactive
Lerta Amount
0
Lerta Expiration Year
0
Residential Data
Card 1
Style
BUNGALOW
Basement
FULL
Year Built
1900
Exterior Wall
FRAME
Total Living Area
1157
Full Baths
1
Half Baths
0
Fuel Type
PROPANE
Heating
CENTRAL
Heating System
FORCED AIR
Stories
1.0
Total Bedrooms
3
Total Family Rooms
1
Total Rooms
7
Fireplaces
0
Other Buildings & Yards
Description
Built
Width
Length
Area
FLAT BARN
1910
40
50
2000
FRAME OR CB DETACHED GARAGE
1940
12
22
264
Sales History
Sale Date
Type
Price
Book / Page
Other Info
7/16/2009
LAND & BUILDING
0
1577 / 0917
DEED
11/23/1998
0
0601 / 1914
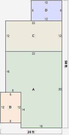
Parcel Sketches
Residential Card 1
A
MAIN
576 square feet
B
OFP OPEN FRAME PORCH
96 square feet
C
1S FR ONE STORY FRAME
264 square feet
D
FR UT FRAME UTILITY BUILDING
96 square feet
Parcel Images