Elected Officials
Courts
Departments
Initiatives
Open Government
About
Login / Register
Home
/
Property & Tax Records
/
Property Records
/
Property & Tax Search
/
Parcel Profile
/
Print View
Search for Another Parcel
Parcel Profile
Historical Card
Sketches
Photos
Tax Map
Taxes
Print View
Print This Page
Address: 11288 W GREENE RD
Parcel: 25025064001200
Parcel Profile
Address
11288 | W | GREENE | RD
Street Status
PAVED
School District
WATTSBURG SCHOOL
Acreage
2.0000
Classification
R
Land Use Code
SINGLE FAMILY
Legal Description
11288 W GREENE RD LOT "A" 2.00 AC NET | 2.357 AC GROSS
Square Feet
1992
Topo
LEVEL
Utility
WELL | SEPTIC
Zoning
Please contact your municipal zoning officer
Deed Book
2015
Deed Page
003329
2025 Tax Values
Land Value / Taxable
39,600 / 39,600.00
Building Value / Taxable
77,190 / 77,190.00
Total Value / Taxable
116,790 / 116,790.00
Clean & Green
Inactive
Homestead Status
Active
Farmstead Status
Inactive
Lerta Amount
0
Lerta Expiration Year
0
Residential Data
Card 1
Style
OLD STYLE
Basement
FULL
Year Built
1900
Exterior Wall
ALUMINUM/VINYL
Total Living Area
1992
Full Baths
2
Half Baths
0
Fuel Type
GAS
Heating
CENTRAL
Heating System
HOT WATER
Stories
2.0
Total Bedrooms
4
Total Family Rooms
1
Total Rooms
7
Fireplaces
0
Other Buildings & Yards
Description
Built
Width
Length
Area
FRAME UTILITY SHED
1920
28
50
1400
FRAME UTILITY SHED
2016
12
20
240
Sales History
Sale Date
Type
Price
Book / Page
Other Info
2/24/2015
LAND & BUILDING
145000
2015 / 003329
SPECIAL WARRANTY DEED
1/14/2013
LAND & BUILDING
275000
2013 / 001023
FIDUCIARY DEED
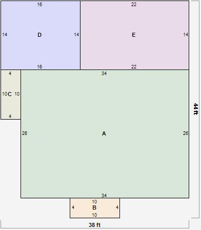
Parcel Sketches
Residential Card 1
A
MAIN
884 square feet
B
OFP OPEN FRAME PORCH
40 square feet
C
OFP OPEN FRAME PORCH
40 square feet
D
UNFIN BSMT BASEMENT UNFINISHED 1S FR ONE STORY FRAME
224 square feet
E
WDDCK WOOD DECKS
308 square feet
Parcel Images