Elected Officials
Courts
Departments
Initiatives
Open Government
About
Login / Register
Home
/
Property & Tax Records
/
Property Records
/
Property & Tax Search
/
Parcel Profile
/
Print View
Search for Another Parcel
Parcel Profile
Historical Card
Sketches
Photos
Tax Map
Taxes
Print View
Print This Page
Address: 9680 NEW RD
Parcel: 26007020001100
Parcel Profile
Address
9680 | NEW | RD
Street Status
UNPAVED
School District
WATTSBURG SCHOOL
Acreage
56.3100
Classification
F
Land Use Code
80 ACRES OR MORE
Legal Description
9680 NEW RD 56.31 AC CAL
Square Feet
2373
Topo
LEVEL
Utility
WELL | SEPTIC
Zoning
Please contact your municipal zoning officer
Deed Book
2011
Deed Page
009294
2026 Tax Values
Land Value / Taxable
82,600 / 64,500.00
Building Value / Taxable
158,600 / 158,600.00
Total Value / Taxable
241,200 / 223,100.00
Clean & Green
Active
Homestead Status
Active
Farmstead Status
Inactive
Lerta Amount
0
Lerta Expiration Year
0
Residential Data
Card 1
Style
CAPE
Basement
FULL
Year Built
1930
Exterior Wall
ALUMINUM/VINYL
Total Living Area
2373
Full Baths
2
Half Baths
0
Fuel Type
OIL
Heating
CENTRAL
Heating System
FORCED AIR
Stories
1.5
Total Bedrooms
3
Total Family Rooms
0
Total Rooms
10
Fireplaces
1
Other Buildings & Yards
Description
Built
Width
Length
Area
FRAME OR CB DETACHED GARAGE
1990
13
22
286
FRAME OR CB DETACHED GARAGE
1990
32
60
1920
CANOPY RF-ECONOMY
1995
12
24
288
FRAME OR CB DETACHED GARAGE
1990
40
80
3200
1S LEAN TO
1990
6
6
36
FOUR SIDE CLOSED WD POLE BLDG
1999
31
33
1023
FOUR SIDE CLOSED WD POLE BLDG
1999
24
50
1200
FOUR SIDE CLOSED MTL POLE BLDG
2012
24
32
768
FOUR SIDE CLOSED MTL POLE BLDG
2012
12
24
288
Sales History
Sale Date
Type
Price
Book / Page
Other Info
4/27/2011
LAND & BUILDING
0
2011 / 009294
QUIT CLAIM DEED
7/22/1974
0
1124 / 0523
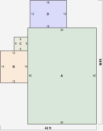
Parcel Sketches
Residential Card 1
A
MAIN
1260 square feet
B
1S FR ONE STORY FRAME
168 square feet
C
WDDCK WOOD DECKS
36 square feet
D
EFP ENCL FRAME PORCH
192 square feet
Parcel Images
Please note:
this tab is for informational purposes only and may not show all delinquencies, see the Taxes tab for more accurate delinquent taxes due.