Elected Officials
Courts
Departments
Initiatives
Open Government
About
Login / Register
Home
/
Property & Tax Records
/
Property Records
/
Property & Tax Search
/
Parcel Profile
/
Print View
Search for Another Parcel
Parcel Profile
Historical Card
Sketches
Photos
Tax Map
Taxes
Print View
Print This Page
Address: 9015 WILLIAMS RD
Parcel: 26007020003100
Parcel Profile
Address
9015 | WILLIAMS | RD
Street Status
PAVED
School District
WATTSBURG SCHOOL
Acreage
4.2000
Classification
R
Land Use Code
SINGLE FAMILY
Legal Description
9015 WILLIAMS RD 4.02 AC CAL
Square Feet
1696
Topo
LEVEL
Utility
GAS | WELL | SEPTIC
Zoning
Please contact your municipal zoning officer
Deed Book
2019
Deed Page
006677
2026 Tax Values
Land Value / Taxable
39,600 / 39,600.00
Building Value / Taxable
48,400 / 48,400.00
Total Value / Taxable
88,000 / 88,000.00
Clean & Green
Inactive
Homestead Status
Inactive
Farmstead Status
Inactive
Lerta Amount
0
Lerta Expiration Year
0
Residential Data
Card 1
Style
OLD STYLE
Basement
FULL
Year Built
1900
Exterior Wall
ALUMINUM/VINYL
Total Living Area
1696
Full Baths
1
Half Baths
0
Fuel Type
GAS
Heating
CENTRAL
Heating System
FORCED AIR
Stories
2.0
Total Bedrooms
4
Total Family Rooms
0
Total Rooms
8
Fireplaces
0
Other Buildings & Yards
Description
Built
Width
Length
Area
FRAME UTILITY SHED
1930
12
20
240
Sales History
Sale Date
Type
Price
Book / Page
Other Info
4/16/2019
LAND & BUILDING
104999
2019 / 006677
SPECIAL WARRANTY DEED
6/1/2007
LAND & BUILDING
88000
1420 / 1060
WARRANTY/SURVIVORSHIP DEED
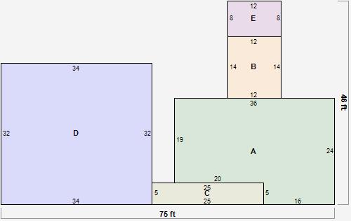
Parcel Sketches
Residential Card 1
A
MAIN
764 square feet
B
1S FR ONE STORY FRAME
168 square feet
C
EFP ENCL FRAME PORCH
125 square feet
D
FR GR FRAME GARAGE
1088 square feet
E
OFP OPEN FRAME PORCH
96 square feet
Parcel Images
Please note:
this tab is for informational purposes only and may not show all delinquencies, see the Taxes tab for more accurate delinquent taxes due.