Elected Officials
Courts
Departments
Initiatives
Open Government
About
Login / Register
Home
/
Property & Tax Records
/
Property Records
/
Property & Tax Search
/
Parcel Profile
/
Print View
Search for Another Parcel
Parcel Profile
Historical Card
Sketches
Photos
Tax Map
Taxes
Print View
Print This Page
Address: 10526 WILDMAN RD
Parcel: 26010027001005
Parcel Profile
Address
10526 | WILDMAN | RD
Street Status
PAVED
School District
WATTSBURG SCHOOL
Acreage
5.0000
Classification
R
Land Use Code
SINGLE FAMILY
Legal Description
10526 WILDMAN RD LOT 6 5 AC
Square Feet
1452
Topo
LEVEL
Utility
WELL | SEPTIC
Zoning
Please contact your municipal zoning officer
Deed Book
0996
Deed Page
0556
2025 Tax Values
Land Value / Taxable
42,000 / 42,000.00
Building Value / Taxable
62,500 / 62,500.00
Total Value / Taxable
104,500 / 104,500.00
Clean & Green
Inactive
Homestead Status
Active
Farmstead Status
Inactive
Lerta Amount
0
Lerta Expiration Year
0
Residential Data
Card 1
Style
CONVENTIONAL
Basement
FULL
Year Built
1930
Exterior Wall
ALUMINUM/VINYL
Total Living Area
1452
Full Baths
1
Half Baths
0
Fuel Type
OIL
Heating
CENTRAL
Heating System
FORCED AIR
Stories
2.0
Total Bedrooms
3
Total Family Rooms
2
Total Rooms
6
Fireplaces
0
Other Buildings & Yards
Description
Built
Width
Length
Area
FOUR SIDE CLOSED MTL POLE BLDG
1986
26
48
1248
Sales History
Sale Date
Type
Price
Book / Page
Other Info
4/8/2003
LAND & BUILDING
0
0996 / 0556
FIDUCIARY DEED
9/21/1995
0
0404 / 0563
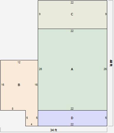
Parcel Sketches
Residential Card 1
A
MAIN
572 square feet
B
WDDCK WOOD DECKS
212 square feet
C
1S FR ONE STORY FRAME
198 square feet
D
1S FR ONE STORY FRAME
110 square feet
Parcel Images