Elected Officials
Courts
Departments
Initiatives
Open Government
About
Login / Register
Home
/
Property & Tax Records
/
Property Records
/
Property & Tax Search
/
Parcel Profile
/
Print View
Search for Another Parcel
Parcel Profile
Historical Card
Sketches
Photos
Tax Map
Taxes
Print View
Print This Page
Address: 11490 WILSON RD
Parcel: 26011031001801
Parcel Profile
Address
11490 | WILSON | RD
Street Status
PAVED
School District
WATTSBURG SCHOOL
Acreage
0.8000
Classification
R
Land Use Code
SINGLE FAMILY
Legal Description
11490 WILSON RD .80 AC CAL
Square Feet
2312
Topo
ABOVE STREET | ROLLING
Utility
WELL | SEPTIC
Zoning
Please contact your municipal zoning officer
Deed Book
1342
Deed Page
2092
2026 Tax Values
Land Value / Taxable
30,000 / 30,000.00
Building Value / Taxable
42,200 / 42,200.00
Total Value / Taxable
72,200 / 72,200.00
Clean & Green
Inactive
Homestead Status
Inactive
Farmstead Status
Inactive
Lerta Amount
0
Lerta Expiration Year
0
Residential Data
Card 1
Style
OLD STYLE
Basement
FULL
Year Built
1900
Exterior Wall
FRAME
Total Living Area
2312
Full Baths
2
Half Baths
0
Fuel Type
GAS
Heating
CENTRAL
Heating System
HOT WATER
Stories
2.0
Total Bedrooms
4
Total Family Rooms
0
Total Rooms
11
Fireplaces
0
Other Buildings & Yards
Description
Built
Width
Length
Area
FOUR SIDE CLOSED MTL POLE BLDG
1999
30
50
1500
Sales History
Sale Date
Type
Price
Book / Page
Other Info
7/7/2006
LAND & BUILDING
0
1342 / 2092
QUIT CLAIM DEED
10/25/2004
0
1183 / 1779
10/25/2004
LAND & BUILDING
67780
1183 / 1779
WARRANTY/SURVIVORSHIP DEED
10/8/1999
LAND & BUILDING
40000
666 / 2376
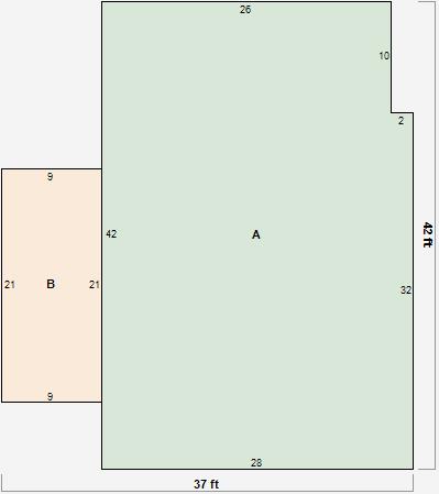
Parcel Sketches
Residential Card 1
A
MAIN
1156 square feet
B
MA_PT CONC/MAS PATIO
189 square feet
Parcel Images
Please note:
this tab is for informational purposes only and may not show all delinquencies, see the Taxes tab for more accurate delinquent taxes due.