Elected Officials
Courts
Departments
Initiatives
Open Government
About
Login / Register
Home
/
Property & Tax Records
/
Property Records
/
Property & Tax Search
/
Parcel Profile
/
Print View
Search for Another Parcel
Parcel Profile
Historical Card
Sketches
Photos
Tax Map
Taxes
Print View
Print This Page
Address: 11427 ASHTON RD
Parcel: 26012033000800
Parcel Profile
Address
11427 | ASHTON | RD
Street Status
UNPAVED
School District
WATTSBURG SCHOOL
Acreage
9.7340
Classification
R
Land Use Code
SINGLE FAMILY
Legal Description
11427 ASHTON RD LOT 4 9.734 AC
Square Feet
1726
Topo
ABOVE STREET | ROLLING
Utility
WELL | SEPTIC
Zoning
Please contact your municipal zoning officer
Deed Book
1394
Deed Page
1415
2026 Tax Values
Land Value / Taxable
51,000 / 35,600.00
Building Value / Taxable
72,400 / 72,400.00
Total Value / Taxable
123,400 / 108,000.00
Clean & Green
Active
Homestead Status
Active
Farmstead Status
Inactive
Lerta Amount
0
Lerta Expiration Year
0
Residential Data
Card 1
Style
OLD STYLE
Basement
PART
Year Built
1900
Exterior Wall
COMPOSITION
Total Living Area
1726
Full Baths
1
Half Baths
0
Fuel Type
GAS
Heating
CENTRAL
Heating System
FORCED AIR
Stories
1.5
Total Bedrooms
3
Total Family Rooms
0
Total Rooms
6
Fireplaces
0
Other Buildings & Yards
Description
Built
Width
Length
Area
FLAT BARN
1900
44
80
3520
FRAME UTILITY SHED
1900
36
44
1584
FRAME UTILITY SHED
1900
18
20
360
FRAME UTILITY SHED
1900
12
22
264
METAL SHED
1940
36
36
1296
Sales History
Sale Date
Type
Price
Book / Page
Other Info
2/9/2007
LAND & BUILDING
0
1394 / 1415
DEED
1/14/1972
LAND & BUILDING
48709
1060 / 0374
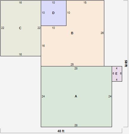
Parcel Sketches
Residential Card 1
A
MAIN
672 square feet
B
UNFIN BSMT BASEMENT UNFINISHED 1S FR ONE STORY FRAME
550 square feet
C
CANPY CANOPY
352 square feet
D
EFP ENCL FRAME PORCH
100 square feet
E
MA STOOP/TERR MAS STOOP
24 square feet
Parcel Images
Please note:
this tab is for informational purposes only and may not show all delinquencies, see the Taxes tab for more accurate delinquent taxes due.