Elected Officials
Courts
Departments
Initiatives
Open Government
About
Login / Register
Home
/
Property & Tax Records
/
Property Records
/
Property & Tax Search
/
Parcel Profile
/
Print View
Search for Another Parcel
Parcel Profile
Historical Card
Sketches
Photos
Tax Map
Taxes
Print View
Print This Page
Address: 9481 WILDMAN RD
Parcel: 26016042000200
Parcel Profile
Address
9481 | WILDMAN | RD
Street Status
UNPAVED
School District
WATTSBURG SCHOOL
Acreage
10.2300
Classification
F
Land Use Code
10-19.99 ACRES
Legal Description
9481 WILDMAN RD 10.235 AC CAL
Square Feet
1224
Topo
LEVEL
Utility
WELL | SEPTIC
Zoning
Please contact your municipal zoning officer
Deed Book
2023
Deed Page
013737
2026 Tax Values
Land Value / Taxable
38,700 / 35,900.00
Building Value / Taxable
36,300 / 36,300.00
Total Value / Taxable
75,000 / 72,200.00
Clean & Green
Active
Homestead Status
Active
Farmstead Status
Inactive
Lerta Amount
0
Lerta Expiration Year
0
Residential Data
Card 1
Style
CONVENTIONAL
Basement
PART
Year Built
1850
Exterior Wall
COMPOSITION
Total Living Area
1224
Full Baths
1
Half Baths
0
Fuel Type
COAL/WOOD
Heating
CENTRAL
Heating System
HOT WATER
Stories
1.0
Total Bedrooms
1
Total Family Rooms
0
Total Rooms
5
Fireplaces
0
Other Buildings & Yards
No OBY Data Found
Sales History
Sale Date
Type
Price
Book / Page
Other Info
8/18/2023
LAND & BUILDING
0
2023 / 013736
FIDUCIARY DEED
8/18/2023
LAND & BUILDING
60000
2023 / 013737
SPECIAL WARRANTY DEED
10/1/2002
LAND & BUILDING
0
0927 / 1231
DEED
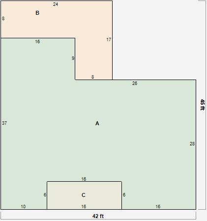
Parcel Sketches
Residential Card 1
A
MAIN
1224 square feet
B
OFP OPEN FRAME PORCH
264 square feet
C
OFP OPEN FRAME PORCH
96 square feet
Parcel Images
Please note:
this tab is for informational purposes only and may not show all delinquencies, see the Taxes tab for more accurate delinquent taxes due.