Elected Officials
Courts
Departments
Initiatives
Open Government
About
Login / Register
Home
/
Property & Tax Records
/
Property Records
/
Property & Tax Search
/
Parcel Profile
/
Print View
Search for Another Parcel
Parcel Profile
Historical Card
Sketches
Photos
Tax Map
Taxes
Print View
Print This Page
Address: 515 NAGLE RD
Parcel: 27006076002200
Parcel Profile
Address
515 | NAGLE | RD
Street Status
PAVED
School District
HARBOR CREEK
Acreage
1.0000
Classification
R
Land Use Code
SINGLE FAMILY
Legal Description
515 NAGLE RD 1 AC
Square Feet
1190
Topo
LEVEL
Utility
ALL PUBLIC
Zoning
Please contact your municipal zoning officer
Deed Book
2016
Deed Page
020768
2025 Tax Values
Land Value / Taxable
40,200 / 40,200.00
Building Value / Taxable
78,400 / 78,400.00
Total Value / Taxable
118,600 / 118,600.00
Clean & Green
Inactive
Homestead Status
Active
Farmstead Status
Inactive
Lerta Amount
0
Lerta Expiration Year
0
Residential Data
Card 1
Style
CAPE
Basement
FULL
Year Built
1920
Exterior Wall
COMPOSITION
Total Living Area
1190
Full Baths
1
Half Baths
0
Fuel Type
GAS
Heating
CENTRAL
Heating System
FORCED AIR
Stories
1.0
Total Bedrooms
3
Total Family Rooms
0
Total Rooms
6
Fireplaces
0
Other Buildings & Yards
Description
Built
Width
Length
Area
FRAME OR CB DETACHED GARAGE
1920
22
24
528
Sales History
Sale Date
Type
Price
Book / Page
Other Info
9/23/2016
LAND & BUILDING
112000
2016 / 020768
SPECIAL WARRANTY DEED
7/16/1996
LAND & BUILDING
64900
0450 / 1962
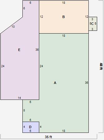
Parcel Sketches
Residential Card 1
A
MAIN
696 square feet
B
1S FR ONE STORY FRAME
216 square feet
C
EFP ENCL FRAME PORCH
15 square feet
D
OFP OPEN FRAME PORCH
24 square feet
E
WDDCK WOOD DECKS
432 square feet
Parcel Images