Elected Officials
Courts
Departments
Initiatives
Open Government
About
Login / Register
Home
/
Property & Tax Records
/
Property Records
/
Property & Tax Search
/
Parcel Profile
/
Print View
Search for Another Parcel
Parcel Profile
Historical Card
Sketches
Photos
Tax Map
Taxes
Print View
Print This Page
Address: 528 FAIR AVE
Parcel: 27008071001100
Parcel Profile
Address
528 | FAIR | AVE
Street Status
PAVED
School District
HARBOR CREEK
Acreage
0.4132
Classification
R
Land Use Code
SINGLE FAMILY
Legal Description
528 FAIR AVE 112.5X190
Square Feet
1990
Topo
LEVEL
Utility
ALL PUBLIC
Zoning
Please contact your municipal zoning officer
Deed Book
2013
Deed Page
017712
2026 Tax Values
Land Value / Taxable
32,800 / 32,800.00
Building Value / Taxable
97,380 / 97,380.00
Total Value / Taxable
130,180 / 130,180.00
Clean & Green
Inactive
Homestead Status
Active
Farmstead Status
Inactive
Lerta Amount
0
Lerta Expiration Year
0
Residential Data
Card 1
Style
CONVENTIONAL
Basement
FULL
Year Built
1921
Exterior Wall
ALUMINUM/VINYL
Total Living Area
1990
Full Baths
2
Half Baths
0
Fuel Type
GAS
Heating
CENTRAL A/C
Heating System
FORCED AIR
Stories
2.0
Total Bedrooms
4
Total Family Rooms
1
Total Rooms
8
Fireplaces
0
Other Buildings & Yards
Description
Built
Width
Length
Area
FRAME OR CB DETACHED GARAGE
2007
24
26
624
Sales History
Sale Date
Type
Price
Book / Page
Other Info
7/11/2013
LAND & BUILDING
0
2013 / 017712
QUIT CLAIM DEED
8/20/2009
LAND & BUILDING
148000
1585 / 0001
WARRANTY/SURVIVORSHIP DEED
12/15/2000
LAND & BUILDING
55000
0743 / 1007
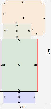
Parcel Sketches
Residential Card 1
A
MAIN
864 square feet
B
WDDCK WOOD DECKS
549 square feet
C
1S FR ONE STORY FRAME
190 square feet
D
EFP ENCL FRAME PORCH
176 square feet
E
FROVR FRAME OVERHANG
36 square feet
F
FROVR FRAME OVERHANG
36 square feet
Parcel Images