Elected Officials
Courts
Departments
Initiatives
Open Government
About
Login / Register
Home
/
Property & Tax Records
/
Property Records
/
Property & Tax Search
/
Parcel Profile
/
Print View
Search for Another Parcel
Parcel Profile
Historical Card
Sketches
Photos
Tax Map
Taxes
Print View
Print This Page
Address: 920 VILLA SITES DR
Parcel: 27016039000900
Parcel Profile
Address
920 | VILLA SITES | DR
Street Status
PAVED
School District
HARBOR CREEK
Acreage
1.2560
Classification
R
Land Use Code
SINGLE FAMILY
Legal Description
920 VILLA SITES DR 1.256 AC
Square Feet
1986
Topo
LEVEL
Utility
ALL PUBLIC
Zoning
Please contact your municipal zoning officer
Deed Book
1226
Deed Page
2017
2026 Tax Values
Land Value / Taxable
41,300 / 41,300.00
Building Value / Taxable
83,030 / 83,030.00
Total Value / Taxable
124,330 / 124,330.00
Clean & Green
Inactive
Homestead Status
Active
Farmstead Status
Inactive
Lerta Amount
0
Lerta Expiration Year
0
Residential Data
Card 1
Style
RANCH
Basement
FULL
Year Built
1924
Exterior Wall
ALUMINUM/VINYL
Total Living Area
1986
Full Baths
1
Half Baths
1
Fuel Type
GAS
Heating
CENTRAL A/C
Heating System
FORCED AIR
Stories
1.0
Total Bedrooms
3
Total Family Rooms
0
Total Rooms
5
Fireplaces
0
Other Buildings & Yards
Description
Built
Width
Length
Area
FRAME OR CB DETACHED GARAGE
1980
20
29
580
Sales History
Sale Date
Type
Price
Book / Page
Other Info
4/19/2005
LAND & BUILDING
0
1226 / 2017
QUIT CLAIM DEED
10/15/1999
0
0668 / 0651
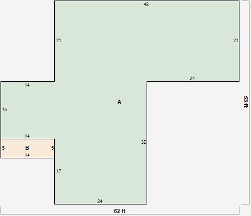
Parcel Sketches
Residential Card 1
A
MAIN
1986 square feet
B
WDDCK WOOD DECKS
70 square feet
Parcel Images
Please note:
this tab is for informational purposes only and may not show all delinquencies, see the Taxes tab for more accurate delinquent taxes due.