Elected Officials
Courts
Departments
Initiatives
Open Government
About
Login / Register
Home
/
Property & Tax Records
/
Property Records
/
Property & Tax Search
/
Parcel Profile
/
Print View
Search for Another Parcel
Parcel Profile
Historical Card
Sketches
Photos
Tax Map
Taxes
Print View
Print This Page
Address: 6186 REDWOOD DR
Parcel: 27018033001400
Parcel Profile
Address
6186 | REDWOOD | DR
Street Status
PAVED
School District
HARBOR CREEK
Acreage
0.3718
Classification
R
Land Use Code
SINGLE FAMILY
Legal Description
6186 REDWOOD DR 60X238.18
Square Feet
2485
Topo
LEVEL
Utility
ALL PUBLIC
Zoning
Please contact your municipal zoning officer
Deed Book
2020
Deed Page
025423
2026 Tax Values
Land Value / Taxable
31,700 / 31,700.00
Building Value / Taxable
110,000 / 110,000.00
Total Value / Taxable
141,700 / 141,700.00
Clean & Green
Inactive
Homestead Status
Active
Farmstead Status
Inactive
Lerta Amount
0
Lerta Expiration Year
0
Residential Data
Card 1
Style
RAISED RANCH
Basement
FULL
Year Built
1950
Exterior Wall
ALUMINUM/VINYL
Total Living Area
2485
Full Baths
3
Half Baths
0
Fuel Type
GAS
Heating
CENTRAL
Heating System
HOT WATER
Stories
1.0
Total Bedrooms
5
Total Family Rooms
0
Total Rooms
9
Fireplaces
0
Other Buildings & Yards
No OBY Data Found
Sales History
Sale Date
Type
Price
Book / Page
Other Info
11/24/2020
LAND & BUILDING
0
2020 / 025423
CORRECTIVE DEED
12/16/2011
LAND & BUILDING
143000
2011 / 030221
SPECIAL WARRANTY DEED
7/13/2010
LAND & BUILDING
68400
2010 / 017053
DEED
3/25/2010
LAND & BUILDING
0
2010 / 006480
SHERIFF'S DED
2/29/2000
LAND & BUILDING
90000
689 / 1672
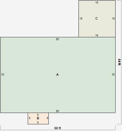
Parcel Sketches
Residential Card 1
A
MAIN
1650 square feet
B
OFP OPEN FRAME PORCH
45 square feet
C
WDDCK WOOD DECKS
256 square feet
Parcel Images