Elected Officials
Courts
Departments
Initiatives
Open Government
About
Login / Register
Home
/
Property & Tax Records
/
Property Records
/
Property & Tax Search
/
Parcel Profile
/
Print View
Search for Another Parcel
Parcel Profile
Historical Card
Sketches
Photos
Tax Map
Taxes
Print View
Print This Page
Address: 6392 LAKE FOREST DR
Parcel: 27019008008600
Parcel Profile
Address
6392 | LAKE FOREST | DR
Street Status
PAVED | PRIVATE
School District
HARBOR CREEK
Acreage
0.1446
Classification
R
Land Use Code
SINGLE FAMILY
Legal Description
6392 LAKE FOREST DR 70X90
Square Feet
2120
Topo
LEVEL
Utility
PUBLIC WATER | SEPTIC
Zoning
Please contact your municipal zoning officer
Deed Book
2010
Deed Page
003577
2026 Tax Values
Land Value / Taxable
114,300 / 114,300.00
Building Value / Taxable
84,570 / 84,570.00
Total Value / Taxable
198,870 / 198,870.00
Clean & Green
Inactive
Homestead Status
Inactive
Farmstead Status
Inactive
Lerta Amount
0
Lerta Expiration Year
0
Residential Data
Card 1
Style
CONVENTIONAL
Basement
PART
Year Built
1920
Exterior Wall
ALUMINUM/VINYL
Total Living Area
2120
Full Baths
1
Half Baths
1
Fuel Type
GAS
Heating
CENTRAL
Heating System
HOT WATER
Stories
2.0
Total Bedrooms
4
Total Family Rooms
0
Total Rooms
7
Fireplaces
0
Other Buildings & Yards
No OBY Data Found
Sales History
Sale Date
Type
Price
Book / Page
Other Info
2/18/2010
LAND & BUILDING
0
2010 / 003577
DEED
10/8/1986
0
1652 / 0430
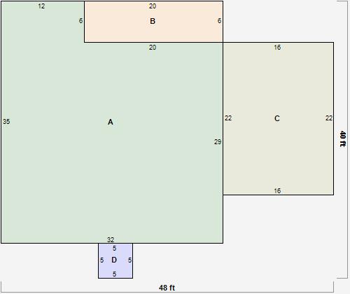
Parcel Sketches
Residential Card 1
A
MAIN
1000 square feet
B
EFP ENCL FRAME PORCH 1S FR ONE STORY FRAME
120 square feet
C
FR GR FRAME GARAGE
352 square feet
D
MA STOOP/TERR MAS STOOP
25 square feet
Parcel Images
Please note:
this tab is for informational purposes only and may not show all delinquencies, see the Taxes tab for more accurate delinquent taxes due.