Elected Officials
Courts
Departments
Initiatives
Open Government
About
Login / Register
Home
/
Property & Tax Records
/
Property Records
/
Property & Tax Search
/
Parcel Profile
/
Print View
Search for Another Parcel
Parcel Profile
Historical Card
Sketches
Photos
Tax Map
Taxes
Print View
Print This Page
Address: 6421 LAKE FOREST DR
Parcel: 27019008009700
Parcel Profile
Address
6421 | LAKE FOREST | DR
Street Status
SEMI IMPROVED | PRIVATE
School District
HARBOR CREEK
Acreage
0.3673
Classification
R
Land Use Code
SINGLE FAMILY
Legal Description
6421 LAKE FOREST DR 100 X 160
Square Feet
1490
Topo
LEVEL
Utility
PUBLIC WATER | SEPTIC
Zoning
Please contact your municipal zoning officer
Deed Book
1515
Deed Page
2170
2026 Tax Values
Land Value / Taxable
61,000 / 61,000.00
Building Value / Taxable
66,800 / 66,800.00
Total Value / Taxable
127,800 / 127,800.00
Clean & Green
Inactive
Homestead Status
Inactive
Farmstead Status
Inactive
Lerta Amount
0
Lerta Expiration Year
0
Residential Data
Card 1
Style
OLD STYLE
Basement
FULL
Year Built
1926
Exterior Wall
FRAME
Total Living Area
1490
Full Baths
1
Half Baths
1
Fuel Type
GAS
Heating
CENTRAL
Heating System
FORCED AIR
Stories
2.0
Total Bedrooms
2
Total Family Rooms
0
Total Rooms
5
Fireplaces
1
Other Buildings & Yards
Description
Built
Width
Length
Area
FRAME OR CB DETACHED GARAGE
1970
18
23
414
Sales History
Sale Date
Type
Price
Book / Page
Other Info
8/19/2008
LAND & BUILDING
0
1515 / 2170
QUIT CLAIM DEED
7/21/2004
LAND & BUILDING
0
1156 / 0270
QUIT CLAIM DEED
11/29/1994
0
0364 / 0855
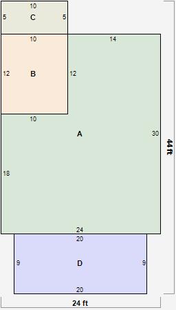
Parcel Sketches
Residential Card 1
A
MAIN
600 square feet
B
UNFIN BSMT BASEMENT UNFINISHED 1S FR ONE STORY FRAME 1S FR ONE STORY FRAME
120 square feet
C
UNFIN BSMT BASEMENT UNFINISHED 1S FR ONE STORY FRAME
50 square feet
D
EFP ENCL FRAME PORCH
180 square feet
Parcel Images
Please note:
this tab is for informational purposes only and may not show all delinquencies, see the Taxes tab for more accurate delinquent taxes due.