Elected Officials
Courts
Departments
Initiatives
Open Government
About
Login / Register
Home
/
Property & Tax Records
/
Property Records
/
Property & Tax Search
/
Parcel Profile
/
Print View
Search for Another Parcel
Parcel Profile
Historical Card
Sketches
Photos
Tax Map
Taxes
Print View
Print This Page
Address: 894 BARTLETT RD
Parcel: 27020033008200
Parcel Profile
Address
894 | BARTLETT | RD
Street Status
UNPAVED
School District
HARBOR CREEK
Acreage
0.8035
Classification
R
Land Use Code
SINGLE FAMILY
Legal Description
894 BARTLETT RD TR 217 200X175
Square Feet
1032
Topo
LEVEL
Utility
GAS | WELL | SEPTIC
Zoning
Please contact your municipal zoning officer
Deed Book
0877
Deed Page
0515
2026 Tax Values
Land Value / Taxable
37,800 / 37,800.00
Building Value / Taxable
43,800 / 43,800.00
Total Value / Taxable
81,600 / 81,600.00
Clean & Green
Inactive
Homestead Status
Active
Farmstead Status
Inactive
Lerta Amount
0
Lerta Expiration Year
0
Residential Data
Card 1
Style
CAPE
Basement
NONE
Year Built
1910
Exterior Wall
ALUMINUM/VINYL
Total Living Area
1032
Full Baths
1
Half Baths
0
Fuel Type
GAS
Heating
CENTRAL
Heating System
HOT WATER
Stories
1.0
Total Bedrooms
2
Total Family Rooms
0
Total Rooms
5
Fireplaces
0
Other Buildings & Yards
Description
Built
Width
Length
Area
FRAME OR CB DETACHED GARAGE
2004
24
24
576
Sales History
Sale Date
Type
Price
Book / Page
Other Info
6/24/1963
0
0877 / 0515
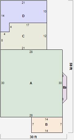
Parcel Sketches
Residential Card 1
A
MAIN
840 square feet
B
WDDCK WOOD DECKS
98 square feet
C
EFP ENCL FRAME PORCH
236 square feet
D
OFP OPEN FRAME PORCH
226 square feet
E
FRBAY FRAME BAY
24 square feet
Parcel Images
Please note:
this tab is for informational purposes only and may not show all delinquencies, see the Taxes tab for more accurate delinquent taxes due.