Elected Officials
Courts
Departments
Initiatives
Open Government
About
Login / Register
Home
/
Property & Tax Records
/
Property Records
/
Property & Tax Search
/
Parcel Profile
/
Print View
Search for Another Parcel
Parcel Profile
Historical Card
Sketches
Photos
Tax Map
Taxes
Print View
Print This Page
Address: 7685 BUFFALO RD
Parcel: 27021118002301
Parcel Profile
Address
7685 | BUFFALO | RD
Street Status
PAVED
School District
HARBOR CREEK
Acreage
1.2850
Classification
R
Land Use Code
SINGLE FAMILY
Legal Description
7685 BUFFALO RD 1.285 AC
Square Feet
2224
Topo
LEVEL
Utility
PUBLIC WATER | GAS | SEPTIC
Zoning
Please contact your municipal zoning officer
Deed Book
1414
Deed Page
2390
2026 Tax Values
Land Value / Taxable
41,400 / 41,400.00
Building Value / Taxable
182,600 / 182,600.00
Total Value / Taxable
224,000 / 224,000.00
Clean & Green
Inactive
Homestead Status
Active
Farmstead Status
Inactive
Lerta Amount
0.00
Lerta Expiration Year
2024
Residential Data
Card 3
Style
RANCH
Basement
NONE
Year Built
2016
Exterior Wall
ALUMINUM/VINYL
Total Living Area
2224
Full Baths
2
Half Baths
1
Fuel Type
GAS
Heating
CENTRAL A/C
Heating System
FORCED AIR
Stories
1.0
Total Bedrooms
3
Total Family Rooms
1
Total Rooms
7
Fireplaces
0
Other Buildings & Yards
Description
Built
Width
Length
Area
FRAME OR CB DETACHED GARAGE
1950
0
0
1020
FOUR SIDE CLOSED WD POLE BLDG
2019
0
0
1964
Sales History
Sale Date
Type
Price
Book / Page
Other Info
5/10/2007
LAND & BUILDING
82000
1414 / 2390
DEED
1/3/1975
0
1134 / 0508
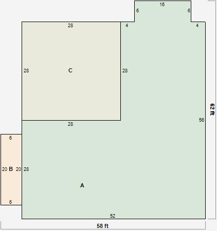
Parcel Sketches
Residential Card 3
A
MAIN
2224 square feet
B
OMP OPEN MASONRY PORCH
120 square feet
C
MA_PT CONC/MAS PATIO
784 square feet
Parcel Images
Please note:
this tab is for informational purposes only and may not show all delinquencies, see the Taxes tab for more accurate delinquent taxes due.