Elected Officials
Courts
Departments
Initiatives
Open Government
About
Login / Register
Home
/
Property & Tax Records
/
Property Records
/
Property & Tax Search
/
Parcel Profile
/
Print View
Search for Another Parcel
Parcel Profile
Historical Card
Sketches
Photos
Tax Map
Taxes
Print View
Print This Page
Address: 7150 DUTTON RD
Parcel: 27025031002400
Parcel Profile
Address
7150 | DUTTON | RD
Street Status
PAVED
School District
HARBOR CREEK
Acreage
4.2200
Classification
R
Land Use Code
SINGLE FAMILY
Legal Description
7150 DUTTON RD 4.22 AC CAL
Square Feet
1800
Topo
LEVEL
Utility
GAS | WELL | SEPTIC
Zoning
Please contact your municipal zoning officer
Deed Book
2021
Deed Page
014148
2026 Tax Values
Land Value / Taxable
53,200 / 53,200.00
Building Value / Taxable
74,000 / 74,000.00
Total Value / Taxable
127,200 / 127,200.00
Clean & Green
Inactive
Homestead Status
Inactive
Farmstead Status
Inactive
Lerta Amount
0
Lerta Expiration Year
0
Residential Data
Card 1
Style
OLD STYLE
Basement
FULL
Year Built
1930
Exterior Wall
BRICK
Total Living Area
1800
Full Baths
1
Half Baths
0
Fuel Type
GAS
Heating
CENTRAL
Heating System
FORCED AIR
Stories
2.0
Total Bedrooms
4
Total Family Rooms
0
Total Rooms
8
Fireplaces
1
Other Buildings & Yards
Description
Built
Width
Length
Area
FRAME OR CB DETACHED GARAGE
1935
24
32
768
Sales History
Sale Date
Type
Price
Book / Page
Other Info
6/4/2021
LAND & BUILDING
200000
2021 / 014148
DEED
1/1/1967
0
0962 / 0280
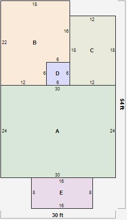
Parcel Sketches
Residential Card 1
A
MAIN
720 square feet
B
1S FR ONE STORY FRAME
360 square feet
C
MA_PT CONC/MAS PATIO
216 square feet
D
EFP ENCL FRAME PORCH
36 square feet
E
EFP ENCL FRAME PORCH
128 square feet
Parcel Images
Please note:
this tab is for informational purposes only and may not show all delinquencies, see the Taxes tab for more accurate delinquent taxes due.