Elected Officials
Courts
Departments
Initiatives
Open Government
About
Login / Register
Home
/
Property & Tax Records
/
Property Records
/
Property & Tax Search
/
Parcel Profile
/
Print View
Search for Another Parcel
Parcel Profile
Historical Card
Sketches
Photos
Tax Map
Taxes
Print View
Print This Page
Address: 8318 WINDSOR BEACH CT
Parcel: 27026024000100
Parcel Profile
Address
8318 | WINDSOR BEACH | CT
Street Status
PAVED
School District
HARBOR CREEK
Acreage
0.1022
Classification
R
Land Use Code
SINGLE FAMILY
Legal Description
8318 WINDSOR BEACH CT 97.7 X IRR
Square Feet
855
Topo
LEVEL
Utility
PUBLIC WATER | GAS | SEPTIC
Zoning
Please contact your municipal zoning officer
Deed Book
2019
Deed Page
014381
2026 Tax Values
Land Value / Taxable
28,200 / 28,200.00
Building Value / Taxable
49,910 / 49,910.00
Total Value / Taxable
78,110 / 78,110.00
Clean & Green
Inactive
Homestead Status
Inactive
Farmstead Status
Inactive
Lerta Amount
0
Lerta Expiration Year
0
Residential Data
Card 1
Style
RANCH
Basement
NONE
Year Built
1930
Exterior Wall
FRAME
Total Living Area
855
Full Baths
1
Half Baths
0
Fuel Type
GAS
Heating
CENTRAL
Heating System
FORCED AIR
Stories
1.0
Total Bedrooms
2
Total Family Rooms
0
Total Rooms
4
Fireplaces
0
Other Buildings & Yards
No OBY Data Found
Sales History
Sale Date
Type
Price
Book / Page
Other Info
7/25/2019
LAND & BUILDING
0
2019 / 014381
SPECIAL WARRANTY DEED
5/7/2015
LAND & BUILDING
130000
2015 / 008902
SPECIAL WARRANTY DEED
5/15/2008
LAND & BUILDING
0
1494 / 2116
WARRANTY/SURVIVORSHIP DEED
5/9/2008
LAND & BUILDING
0
1493 / 1662
FIDUCIARY DEED
4/24/1991
0
0157 / 0812
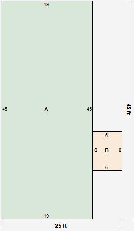
Parcel Sketches
Residential Card 1
A
MAIN
855 square feet
B
CANPY CANOPY
48 square feet
Parcel Images
Please note:
this tab is for informational purposes only and may not show all delinquencies, see the Taxes tab for more accurate delinquent taxes due.