Elected Officials
Courts
Departments
Initiatives
Open Government
About
Login / Register
Home
/
Property & Tax Records
/
Property Records
/
Property & Tax Search
/
Parcel Profile
/
Print View
Search for Another Parcel
Parcel Profile
Historical Card
Sketches
Photos
Tax Map
Taxes
Print View
Print This Page
Address: 8328 WINDSOR BEACH CT
Parcel: 27026026000400
Parcel Profile
Address
8328 | WINDSOR BEACH | CT
Street Status
PAVED
School District
HARBOR CREEK
Acreage
0.1606
Classification
R
Land Use Code
SINGLE FAMILY
Legal Description
8328 WINDSOR BEACH CT 52X136.7
Square Feet
1382
Topo
ROLLING
Utility
PUBLIC WATER | GAS | SEPTIC
Zoning
Please contact your municipal zoning officer
Deed Book
0769
Deed Page
1079
2026 Tax Values
Land Value / Taxable
72,800 / 72,800.00
Building Value / Taxable
75,100 / 75,100.00
Total Value / Taxable
147,900 / 147,900.00
Clean & Green
Inactive
Homestead Status
Active
Farmstead Status
Inactive
Lerta Amount
0
Lerta Expiration Year
0
Residential Data
Card 1
Style
RANCH
Basement
PART
Year Built
1930
Exterior Wall
ALUMINUM/VINYL
Total Living Area
1382
Full Baths
1
Half Baths
0
Fuel Type
GAS
Heating
CENTRAL A/C
Heating System
FORCED AIR
Stories
1.0
Total Bedrooms
3
Total Family Rooms
0
Total Rooms
8
Fireplaces
1
Other Buildings & Yards
Description
Built
Width
Length
Area
FRAME OR CB DETACHED GARAGE
2001
12
20
240
Sales History
Sale Date
Type
Price
Book / Page
Other Info
4/27/2001
LAND & BUILDING
131500
0769 / 1079
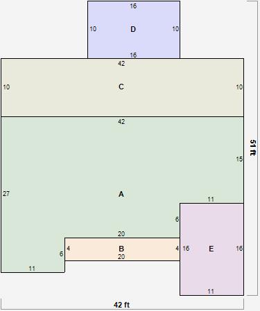
Parcel Sketches
Residential Card 1
A
MAIN
882 square feet
B
1S FR ONE STORY FRAME
80 square feet
C
UNFIN BSMT BASEMENT UNFINISHED 1S FR ONE STORY FRAME
420 square feet
D
WDDCK WOOD DECKS
160 square feet
E
EFP ENCL FRAME PORCH
176 square feet
Parcel Images
Please note:
this tab is for informational purposes only and may not show all delinquencies, see the Taxes tab for more accurate delinquent taxes due.