Elected Officials
Courts
Departments
Initiatives
Open Government
About
Login / Register
Home
/
Property & Tax Records
/
Property Records
/
Property & Tax Search
/
Parcel Profile
/
Print View
Search for Another Parcel
Parcel Profile
Historical Card
Sketches
Photos
Tax Map
Taxes
Print View
Print This Page
Address: 8897 99 E LAKE RD
Parcel: 27030028001200
Parcel Profile
Address
8897 | 99 | E | LAKE | RD
Street Status
PAVED
School District
HARBOR CREEK
Acreage
16.5200
Classification
F
Land Use Code
10-19.99 ACRES
Legal Description
8897-99 E LAKE RD 16.52 AC NET | MB 1997-372
Square Feet
7772
Topo
ROLLING
Utility
GAS | WELL | SEPTIC
Zoning
Please contact your municipal zoning officer
Deed Book
2010
Deed Page
007351
2026 Tax Values
Land Value / Taxable
66,600 / 66,600.00
Building Value / Taxable
324,300 / 324,300.00
Total Value / Taxable
390,900 / 390,900.00
Clean & Green
Inactive
Homestead Status
Inactive
Farmstead Status
Inactive
Lerta Amount
0.00
Lerta Expiration Year
2016
Residential Data
Card 1
Style
OLD STYLE
Basement
FULL
Year Built
1898
Exterior Wall
ALUMINUM/VINYL
Total Living Area
2572
Full Baths
2
Half Baths
1
Fuel Type
GAS
Heating
CENTRAL A/C
Heating System
FORCED AIR
Stories
2.0
Total Bedrooms
4
Total Family Rooms
0
Total Rooms
10
Fireplaces
0
Card 2
Style
OTHER
Basement
NONE
Year Built
1898
Exterior Wall
FRAME
Total Living Area
5200
Full Baths
3
Half Baths
0
Fuel Type
GAS
Heating
CENTRAL A/C
Heating System
FORCED AIR
Stories
2.0
Total Bedrooms
3
Total Family Rooms
0
Total Rooms
9
Fireplaces
2
Other Buildings & Yards
Description
Built
Width
Length
Area
REINFORCED CONCRETE POOL
1997
15
38
570
Sales History
Sale Date
Type
Price
Book / Page
Other Info
4/6/2010
LAND & BUILDING
0
2010 / 007351
SPECIAL WARRANTY DEED
9/19/2005
LAND & BUILDING
375000
1270 / 1804
WARRANTY/SURVIVORSHIP DEED
1/28/2004
LAND & BUILDING
0
1103 / 1688
DEED
9/8/2000
0
0725 / 1091
Parcel Sketches
Residential Card 1
A
MAIN
1003 square feet
B
1S FR ONE STORY FRAME
566 square feet
C
EFP ENCL FRAME PORCH
72 square feet
D
OFP OPEN FRAME PORCH
48 square feet
E
WDDCK WOOD DECKS
760 square feet
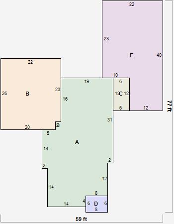
Residential Card 2
A
MAIN
1570 square feet
B
EFP ENCL FRAME PORCH
60 square feet
C
OFP OPEN FRAME PORCH
352 square feet
D
FR GR FRAME GARAGE 1S FR ONE STORY FRAME
900 square feet
E
FR GR FRAME GARAGE 1S FR ONE STORY FRAME
1160 square feet
Parcel Images
Please note:
this tab is for informational purposes only and may not show all delinquencies, see the Taxes tab for more accurate delinquent taxes due.