Elected Officials
Courts
Departments
Initiatives
Open Government
About
Login / Register
Home
/
Property & Tax Records
/
Property Records
/
Property & Tax Search
/
Parcel Profile
/
Print View
Search for Another Parcel
Parcel Profile
Historical Card
Sketches
Photos
Tax Map
Taxes
Print View
Print This Page
Address: 8384 BUFFALO RD
Parcel: 27031030101700
Parcel Profile
Address
8384 | BUFFALO | RD
Street Status
PAVED
School District
HARBOR CREEK
Acreage
12.5000
Classification
F
Land Use Code
10-19.99 ACRES
Legal Description
8384 BUFFALO RD 12.5 AC
Square Feet
1990
Topo
LEVEL
Utility
GAS | WELL | SEPTIC
Zoning
Please contact your municipal zoning officer
Deed Book
2021
Deed Page
017068
2026 Tax Values
Land Value / Taxable
64,800 / 64,800.00
Building Value / Taxable
61,100 / 61,100.00
Total Value / Taxable
125,900 / 125,900.00
Clean & Green
Inactive
Homestead Status
Active
Farmstead Status
Inactive
Lerta Amount
0
Lerta Expiration Year
0
Residential Data
Card 1
Style
CAPE
Basement
CRAWL
Year Built
1897
Exterior Wall
ALUMINUM/VINYL
Total Living Area
1990
Full Baths
1
Half Baths
0
Fuel Type
GAS
Heating
CENTRAL
Heating System
HOT WATER
Stories
1.5
Total Bedrooms
2
Total Family Rooms
0
Total Rooms
7
Fireplaces
1
Other Buildings & Yards
Description
Built
Width
Length
Area
FRAME OR CB DETACHED GARAGE
1900
10
22
220
FRAME UTILITY SHED
1900
22
27
594
Sales History
Sale Date
Type
Price
Book / Page
Other Info
7/1/2021
LAND & BUILDING
245000
2021 / 017068
SPECIAL WARRANTY DEED
6/3/2016
LAND & BUILDING
140000
2016 / 011275
SPECIAL WARRANTY DEED
12/5/2011
LAND & BUILDING
0
2011 / 029166
QUIT CLAIM DEED
10/17/1988
0
0067 / 1761
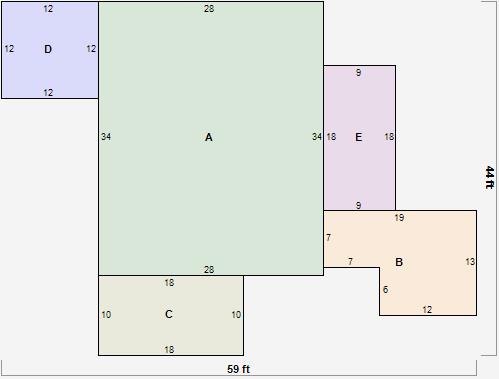
Parcel Sketches
Residential Card 1
A
MAIN
952 square feet
B
WDDCK WOOD DECKS
205 square feet
C
1S FR ONE STORY FRAME
180 square feet
D
UNFIN BSMT BASEMENT UNFINISHED 1S FR ONE STORY FRAME
144 square feet
E
EFP ENCL FRAME PORCH
162 square feet
Parcel Images
Please note:
this tab is for informational purposes only and may not show all delinquencies, see the Taxes tab for more accurate delinquent taxes due.