Address: 8098 BUFFALO RD   Parcel: 27031030102101
Parcel Profile
Address8098 | BUFFALO | RD
Street StatusPAVED
School DistrictHARBOR CREEK
Acreage1.1000
ClassificationR
Land Use CodeSINGLE FAMILY
Legal Description8098 BUFFALO RD 1.1 AC CAL
Square Feet2298
TopoLEVEL
UtilityPUBLIC WATER | GAS | SEPTIC
ZoningPlease contact your municipal zoning officer
Deed Book0975
Deed Page1621
2025 Tax Values
Land Value / Taxable36,600 / 36,600.00
Building Value / Taxable81,960 / 81,960.00
Total Value / Taxable118,560 / 118,560.00
Clean & GreenInactive
Homestead StatusActive
Farmstead StatusInactive
Lerta Amount0
Lerta Expiration Year0
Residential Data
Card 1
     StyleCONVENTIONAL
     BasementFULL
     Year Built1910
     Exterior WallCOMPOSITION
     Total Living Area2298
     Full Baths3
     Half Baths0
     Fuel TypeGAS
     HeatingCENTRAL
     Heating SystemFORCED AIR
     Stories2.0
     Total Bedrooms3
     Total Family Rooms1
     Total Rooms8
     Fireplaces0
Other Buildings & Yards
DescriptionBuiltWidthLengthArea
 FLAT BARN 1950 18 25 450
 FRAME UTILITY SHED 1940 12 16 192
Sales History
Sale DateTypePriceBook / PageOther Info
2/11/2003LAND & BUILDING1140000975 / 1621DEED
7/31/1997 00511 / 1420 



Parcel Sketches

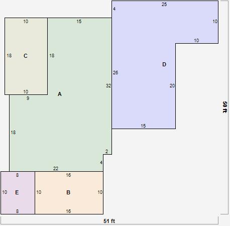
Residential Card 1

Residential Card 1
AMAIN694 square feet
BUNFIN BSMT BASEMENT UNFINISHED 1S FR ONE STORY FRAME 1/2FR FRAME HALF-STORY 160 square feet
C OFP OPEN FRAME PORCH 180 square feet
D 1S FR ONE STORY FRAME 550 square feet
EUNFIN BSMT BASEMENT UNFINISHED 1S FR ONE STORY FRAME 80 square feet

Parcel Images

parcel photo