Elected Officials
Courts
Departments
Initiatives
Open Government
About
Login / Register
Home
/
Property & Tax Records
/
Property Records
/
Property & Tax Search
/
Parcel Profile
/
Print View
Search for Another Parcel
Parcel Profile
Historical Card
Sketches
Photos
Tax Map
Taxes
Print View
Print This Page
Address: 6742 GARFIELD AVE
Parcel: 27033127002000
Parcel Profile
Address
6742 | GARFIELD | AVE
Street Status
PAVED
School District
HARBOR CREEK
Acreage
0.2553
Classification
R
Land Use Code
SINGLE FAMILY
Legal Description
6742 GARFIELD AVE 80X139
Square Feet
1632
Topo
LEVEL
Utility
PUBLIC WATER | GAS | SEPTIC
Zoning
Please contact your municipal zoning officer
Deed Book
2019
Deed Page
001243
2026 Tax Values
Land Value / Taxable
30,800 / 30,800.00
Building Value / Taxable
74,400 / 74,400.00
Total Value / Taxable
105,200 / 105,200.00
Clean & Green
Inactive
Homestead Status
Active
Farmstead Status
Inactive
Lerta Amount
0
Lerta Expiration Year
0
Residential Data
Card 1
Style
CONVENTIONAL
Basement
FULL
Year Built
1916
Exterior Wall
ALUMINUM/VINYL
Total Living Area
1632
Full Baths
1
Half Baths
1
Fuel Type
GAS
Heating
CENTRAL
Heating System
FORCED AIR
Stories
2.0
Total Bedrooms
4
Total Family Rooms
0
Total Rooms
7
Fireplaces
0
Other Buildings & Yards
Description
Built
Width
Length
Area
FRAME UTILITY SHED
2004
12
14
168
Sales History
Sale Date
Type
Price
Book / Page
Other Info
1/23/2019
LAND & BUILDING
94000
2019 / 001243
SPECIAL WARRANTY DEED
4/6/2018
LAND & BUILDING
3585
2018 / 006259
SHERIFF'S DED
5/1/2015
LAND & BUILDING
0
2015 / 008477
DEED
10/16/1998
LAND & BUILDING
85000
594 / 511
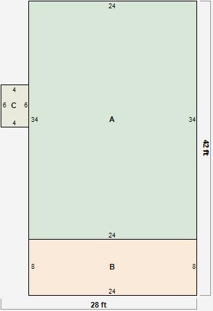
Parcel Sketches
Residential Card 1
A
MAIN
816 square feet
B
OFP OPEN FRAME PORCH
192 square feet
C
OFP OPEN FRAME PORCH
24 square feet
Parcel Images
Please note:
this tab is for informational purposes only and may not show all delinquencies, see the Taxes tab for more accurate delinquent taxes due.