Elected Officials
Courts
Departments
Initiatives
Open Government
About
Login / Register
Home
/
Property & Tax Records
/
Property Records
/
Property & Tax Search
/
Parcel Profile
/
Print View
Search for Another Parcel
Parcel Profile
Historical Card
Sketches
Photos
Tax Map
Taxes
Print View
Print This Page
Address: 1250 BARTLETT RD
Parcel: 27034033009900
Parcel Profile
Address
1250 | BARTLETT | RD
Street Status
PAVED
School District
HARBOR CREEK
Acreage
0.4514
Classification
R
Land Use Code
SINGLE FAMILY
Legal Description
1250 BARTLETT RD 145X135.6
Square Feet
1152
Topo
LEVEL
Utility
PUBLIC WATER | GAS | WELL
Zoning
Please contact your municipal zoning officer
Deed Book
2019
Deed Page
007854
2026 Tax Values
Land Value / Taxable
33,300 / 33,300.00
Building Value / Taxable
42,900 / 42,900.00
Total Value / Taxable
76,200 / 76,200.00
Clean & Green
Inactive
Homestead Status
Inactive
Farmstead Status
Inactive
Lerta Amount
0
Lerta Expiration Year
0
Residential Data
Card 1
Style
BUNGALOW
Basement
FULL
Year Built
1937
Exterior Wall
ALUMINUM/VINYL
Total Living Area
1152
Full Baths
1
Half Baths
0
Fuel Type
GAS
Heating
CENTRAL
Heating System
FORCED AIR
Stories
1.0
Total Bedrooms
3
Total Family Rooms
0
Total Rooms
6
Fireplaces
0
Other Buildings & Yards
Description
Built
Width
Length
Area
FRAME OR CB DETACHED GARAGE
1950
14
22
308
Sales History
Sale Date
Type
Price
Book / Page
Other Info
5/1/2019
LAND & BUILDING
0
2019 / 007854
QUIT/CLAIM SURVIVORSHIP
11/13/2018
LAND & BUILDING
0
2018 / 023581
QUIT CLAIM DEED
7/7/1999
0
0648 / 0127
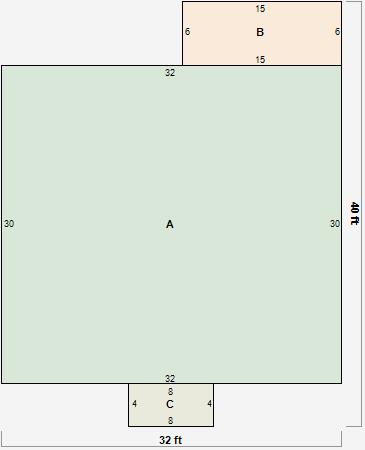
Parcel Sketches
Residential Card 1
A
MAIN
960 square feet
B
MA_PT CONC/MAS PATIO
90 square feet
C
EFP ENCL FRAME PORCH
32 square feet
Parcel Images
Please note:
this tab is for informational purposes only and may not show all delinquencies, see the Taxes tab for more accurate delinquent taxes due.