Elected Officials
Courts
Departments
Initiatives
Open Government
About
Login / Register
Home
/
Property & Tax Records
/
Property Records
/
Property & Tax Search
/
Parcel Profile
/
Print View
Search for Another Parcel
Parcel Profile
Historical Card
Sketches
Photos
Tax Map
Taxes
Print View
Print This Page
Address: 1391 DODGE ST
Parcel: 27034116000700
Parcel Profile
Address
1391 | DODGE | ST
Street Status
PAVED
School District
HARBOR CREEK
Acreage
0.1243
Classification
R
Land Use Code
SINGLE FAMILY
Legal Description
1391 DODGE ST 50X108.3
Square Feet
908
Topo
LEVEL
Utility
PUBLIC WATER | GAS | SEPTIC
Zoning
Please contact your municipal zoning officer
Deed Book
2018
Deed Page
020946
2026 Tax Values
Land Value / Taxable
27,100 / 27,100.00
Building Value / Taxable
25,390 / 25,390.00
Total Value / Taxable
52,490 / 52,490.00
Clean & Green
Inactive
Homestead Status
Active
Farmstead Status
Inactive
Lerta Amount
0
Lerta Expiration Year
0
Residential Data
Card 1
Style
BUNGALOW
Basement
PART
Year Built
1920
Exterior Wall
ALUMINUM/VINYL
Total Living Area
908
Full Baths
1
Half Baths
0
Fuel Type
GAS
Heating
CENTRAL
Heating System
FORCED AIR
Stories
1.0
Total Bedrooms
2
Total Family Rooms
0
Total Rooms
5
Fireplaces
0
Other Buildings & Yards
Description
Built
Width
Length
Area
FRAME OR CB DETACHED GARAGE
1970
24
24
576
Sales History
Sale Date
Type
Price
Book / Page
Other Info
10/10/2018
LAND & BUILDING
93000
2018 / 020946
SPECIAL WARRANTY DEED
2/1/2011
LAND & BUILDING
75000
2011 / 002676
DEED
4/22/2010
LAND & BUILDING
0
2010 / 008738
QUIT CLAIM DEED
11/15/2002
LAND & BUILDING
60000
0945 / 2036
WARRANTY/SURVIVORSHIP DEED
1/21/1993
0
0250 / 1125
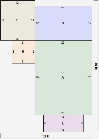
Parcel Sketches
Residential Card 1
A
MAIN
520 square feet
B
1S FR ONE STORY FRAME
64 square feet
C
OFP OPEN FRAME PORCH
168 square feet
D
1S FR ONE STORY FRAME
240 square feet
E
1S FR ONE STORY FRAME
84 square feet
Parcel Images
Please note:
this tab is for informational purposes only and may not show all delinquencies, see the Taxes tab for more accurate delinquent taxes due.