Elected Officials
Courts
Departments
Initiatives
Open Government
About
Login / Register
Home
/
Property & Tax Records
/
Property Records
/
Property & Tax Search
/
Parcel Profile
/
Print View
Search for Another Parcel
Parcel Profile
Historical Card
Sketches
Photos
Tax Map
Taxes
Print View
Print This Page
Address: 7055 GARFIELD AVE
Parcel: 27036126001600
Parcel Profile
Address
7055 | GARFIELD | AVE
Street Status
PAVED
School District
HARBOR CREEK
Acreage
0.8865
Classification
R
Land Use Code
SINGLE FAMILY
Legal Description
7055 GARFIELD AVE 185 X 276.7
Square Feet
1008
Topo
ROLLING
Utility
GAS | WELL | SEPTIC
Zoning
Please contact your municipal zoning officer
Deed Book
1409
Deed Page
1810
2026 Tax Values
Land Value / Taxable
38,800 / 38,800.00
Building Value / Taxable
42,800 / 42,800.00
Total Value / Taxable
81,600 / 81,600.00
Clean & Green
Inactive
Homestead Status
Active
Farmstead Status
Inactive
Lerta Amount
0
Lerta Expiration Year
0
Residential Data
Card 1
Style
RAISED RANCH
Basement
FULL
Year Built
1935
Exterior Wall
ALUMINUM/VINYL
Total Living Area
1008
Full Baths
1
Half Baths
0
Fuel Type
GAS
Heating
CENTRAL A/C
Heating System
FORCED AIR
Stories
1.0
Total Bedrooms
2
Total Family Rooms
0
Total Rooms
5
Fireplaces
1
Other Buildings & Yards
No OBY Data Found
Sales History
Sale Date
Type
Price
Book / Page
Other Info
4/19/2007
LAND & BUILDING
0
1409 / 1810
WARRANTY/SURVIVORSHIP DEED
1/24/1996
0
0421 / 1869
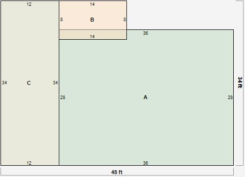
Parcel Sketches
Residential Card 1
A
MAIN
1008 square feet
B
EFP ENCL FRAME PORCH
112 square feet
C
WDDCK WOOD DECKS
408 square feet
Parcel Images
Please note:
this tab is for informational purposes only and may not show all delinquencies, see the Taxes tab for more accurate delinquent taxes due.